In bester Lage und hervorragender Substanz erwartet Sie diese Doppelhaushälfte in Massivbauweise. Mit wenig Aufwand bezugsfertig: neue Böden, frische Farbe - fertig!
Nur wenige Gehminuten vom Stadtzentrum entfernt, befinden sich alle Geschäfte des täglichen Bedarfs in unmittelbarer Nähe. Gleichzeitig liegt der wunderschöne Cambridge Park direkt vor der Haustür.
Insgesamt stehen Ihnen bis zu drei Schlafzimmer zur Verfügung.
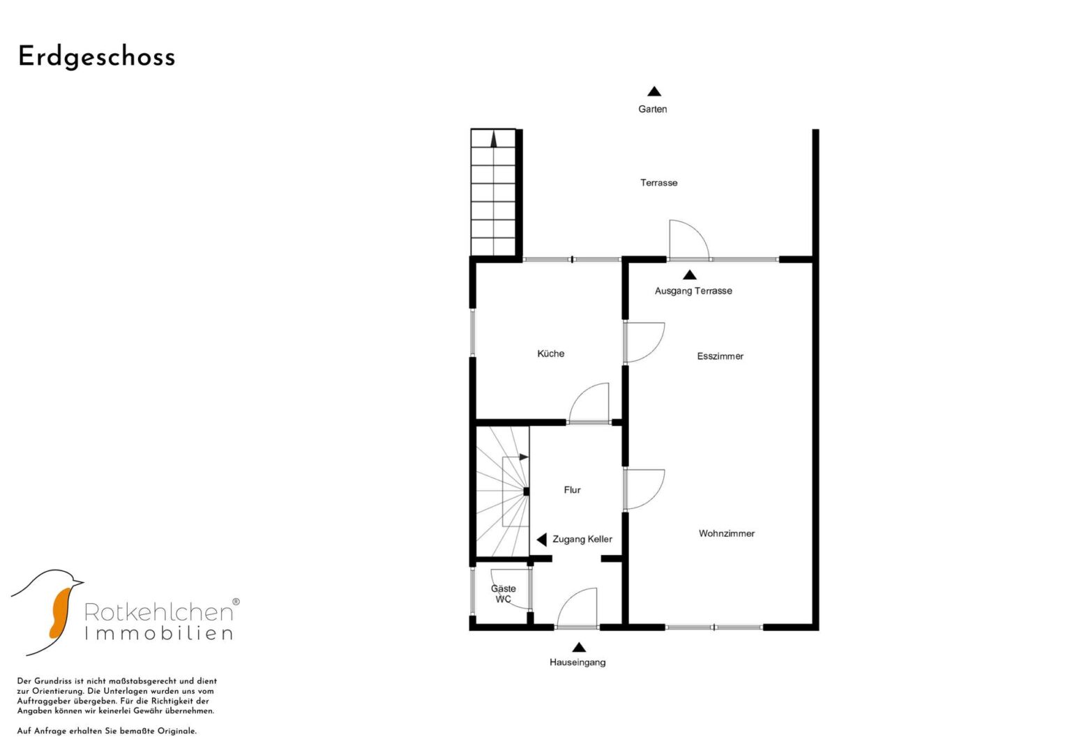
Im Erdgeschoss befinden sich die großzügige Küche, das Gäste-WC sowie der helle Ess- und Wohnbereich mit traumhaftem Blick in den Garten. Von hier aus gelangt man über die überdachte Terrasse in den gepflegten und großzügig angelegten Außenbereich. Durch liebevolle Pflege über viele Jahre hinweg ist der Garten eine grüne Oase in bester Lage. Dank der vielen Grünpflanzen nicht einsehbar und bietet Ihnen somit absolute Privatsphäre.
Auf der ersten Ebene befinden sich ein großes Schlafzimmer, sowie zwei weitere Räume, die sich ideal als Kinder- oder Arbeitszimmer eignen und mit Blick auf den Garten und Balkon überzeugen. Außerdem befindet sich auf dieser Ebene das helle und erst 2013 vollständig modernisierte Tageslichtbad.
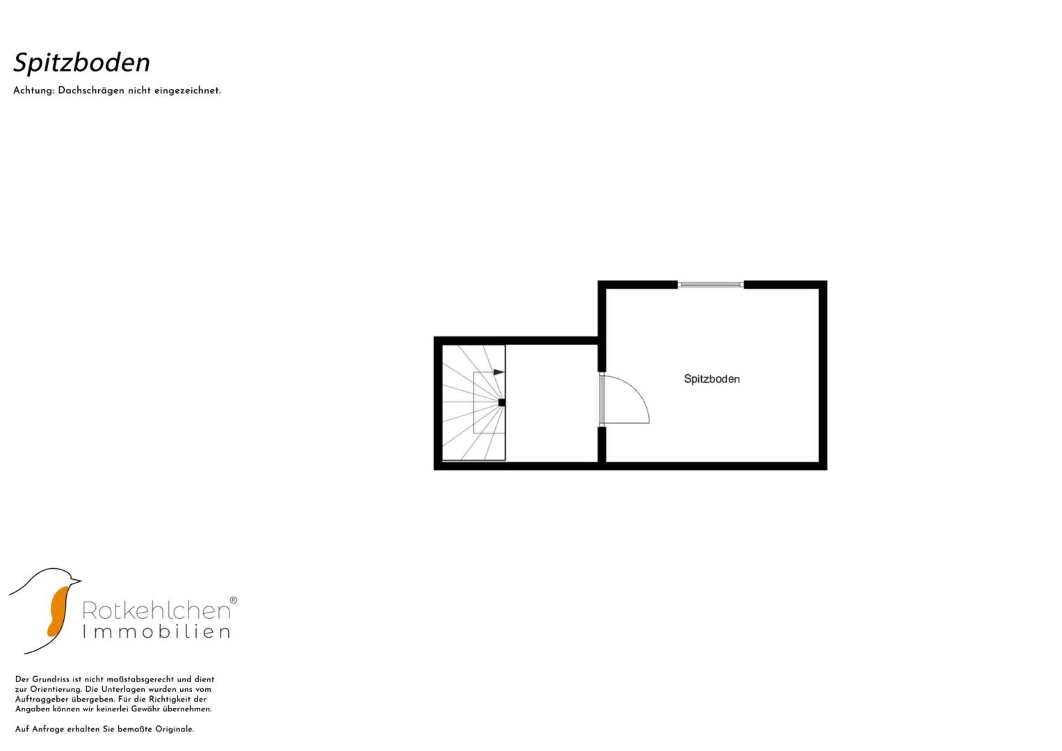
Über die Treppe gelangen Sie in den bereits ausgebauten Spitzboden. Dieser bietet Ihnen vielfältige Nutzungsmöglichkeiten. So lässt sich hier beispielsweise ein Homeoffice oder ein weiteres Schlafzimmer hervorragend realisieren. Der Spitzboden ist nicht Bestandteil der angegebenen Wohnfläche.
Voll unterkellert bietet diese Immobilie ausreichend Stauraum. Eine neue Gasheizung ist bereits verbaut. Eine Garage mit vorgelagerten Stellplätzen rundet das Angebot ab.
Eine einmalige Gelegenheit, die eigenen Wünsche in begehrter Lage zu verwirklichen.
Highlights:
•Perfekte Lage
•Traumhaftes Grundstück
•Bis zu drei Schlafzimmer
•Fenster Doppelverglasung
•Gas-Heizung 2010
•Modernisiertes Badezimmer 2013
•Garage
•Stellplätze
•Und vieles mehr…




















