Dieses in Massivbauweise errichtete Reihenendhaus befindet sich in bester Lage.
Nur wenige Gehminuten vom Stadtzentrum entfernt befinden sich alle Geschäfte des täglichen Bedarfs in unmittelbarer Nähe.
Insgesamt steht Ihnen eine Wohnfläche von ca. 100 m² zur Verfügung.
Im Erdgeschoss befinden sich die großzügige Küche, das Gäste-WC sowie der helle Wohnbereich. Besonders schön ist der angrenzende Wintergarten, der durch die bodentiefe Fensterfront für eine lichtdurchflutete Atmosphäre sorgt und zudem mit einem traumhaften Blick in den Garten überzeugt.
Über den Wintergarten gelangen Sie in den Außenbereich. Ihr Garten ist dank der vielen Grünpflanzen nicht einsehbar und bietet Ihnen somit absolute Privatsphäre. Schaffen Sie sich hier eine kleine grüne Oase in bester Lage.
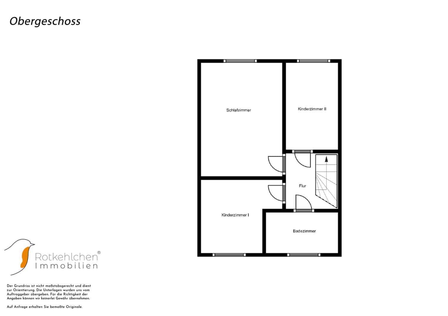
Im Obergeschoss befinden sich das große Schlafzimmer mit Blick in den Garten sowie zwei weitere Räume, die sich ideal als Kinder- oder Arbeitszimmer eignen. Auch eine Nutzung als Ankleidezimmer oder Hobbyraum wäre hier denkbar, so dass Ihren Gestaltungsideen keine Grenzen gesetzt sind.
Außerdem befindet sich auf dieser Ebene das helle Tageslichtbad mit Badewanne, das Sie nach Ihren Vorstellungen umgestalten können.
Voll unterkellert bietet diese Immobilie ausreichend Stauraum.
Eine einmalige Gelegenheit, die eigenen Wünsche in begehrter Lage zu verwirklichen.
Highlights:
- Perfekte Lage
- Kunststoff-Fenster 1987
- Gasheizung 2018
- Dachziegel bereits erneuert
- Wintergarten
- Bis zu drei Schlafzimmer
- Und vieles mehr...















