Dieses Reihenhaus wurde 1972 in Massivbauweise errichtet und bietet Ihnen die perfekte Basis, um Ihre eigenen Ideen und Träume zu verwirklichen.
Es verbindet eine ruhige Lage mit hervorragenden Einkaufsmöglichkeiten direkt vor der Haustür.
Im Erdgeschoss erwartet Sie ein großzügiges Wohnzimmer mit Zugang zum einladenden Wintergarten, von dem aus Sie einen herrlichen Blick in den gepflegten Garten genießen. Das Wohnzimmer in Kombination mit dem großen Wintergarten bietet viel Licht und zusätzlich ausreichend Platz für einen großen Essbereich. Der Garten wurde mit viel Liebe angelegt und ist sehr pflegeleicht. Durch die optimale Süd-Westausrichtung finden Sie hier auch nach Feierabend immer noch einen Platz in der Sonne. Im Erdgeschoss befinden sich außerdem eine geräumige Küche sowie ein Gäste-WC.
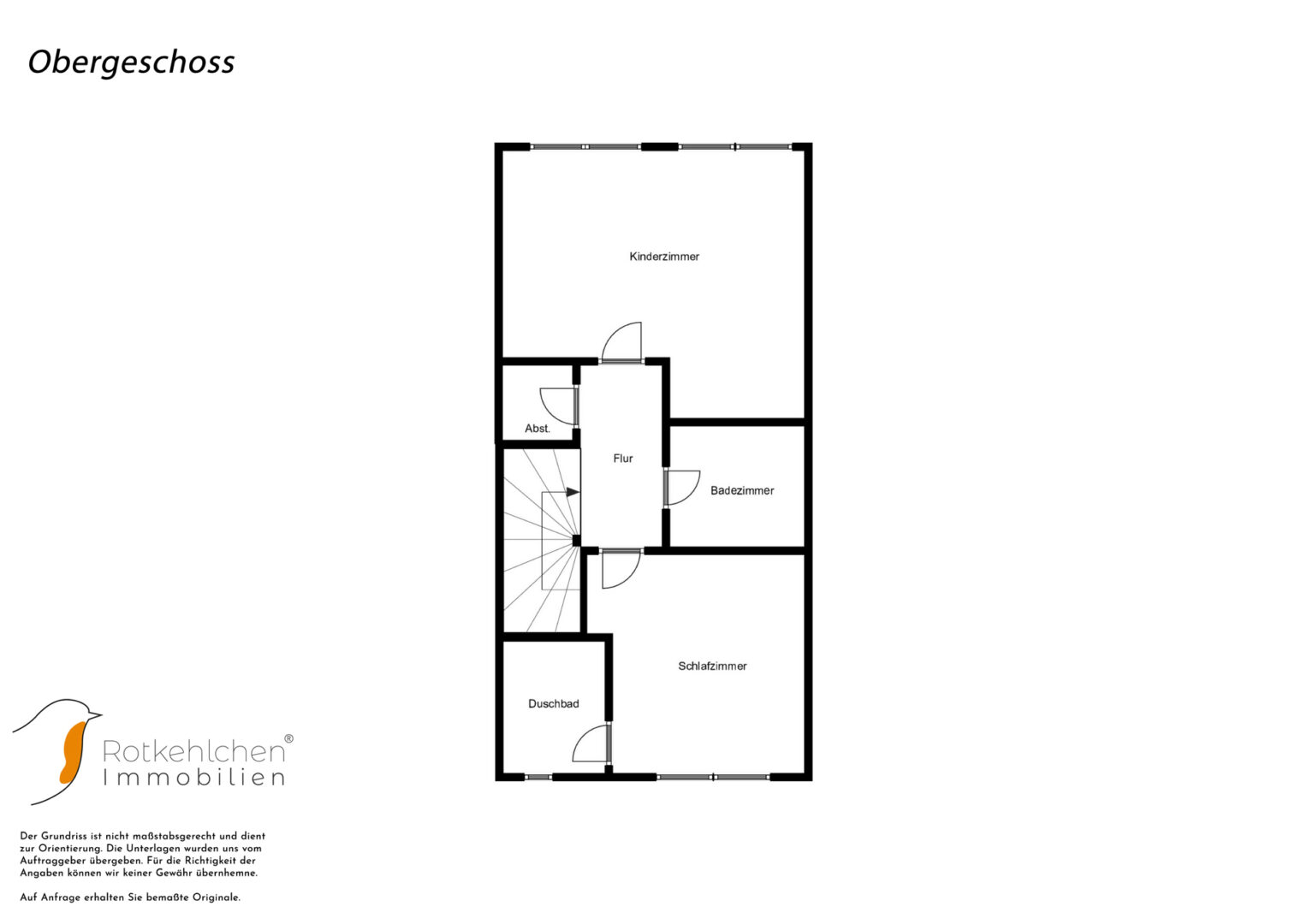
Im Obergeschoss des Hauses erwarten Sie zwei große Schlafzimmer, von denen eines über ein eigenes Duschbad verfügt. Außerdem befindet sich im Obergeschoss ein weiteres Badezimmer mit Dusche und Badewanne. Wird mehr Platz benötigt, kann das Kinderzimmer in zwei Räume unterteilt werden.
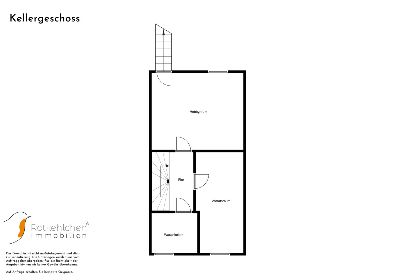
Das Kellergeschoss bietet ausreichend Stauraum und einen großen ehemaligen Partykeller, den Sie für kommende Feiern nutzen können oder der sich perfekt als Hobbyraum eignet - Ihrer Fantasie sind hier keine Grenzen gesetzt.
Abgerundet wird dieses attraktive Angebot durch eine Garage in unmittelbarer Nähe der Immobilie.
Die Fenster wurden bereits im Jahr 2000 erneuert und die Beheizung erfolgt über zukunftssichere Fernwärme. Durch überschaubare Modernisierungen haben Sie die Möglichkeit, Ihre persönlichen Gestaltungsideen einzubringen und ein gemütliches Zuhause nach Ihren Wünschen zu schaffen. Nutzen Sie die Chance, Ihr Traumhaus in ruhiger Lage mit Einkaufsmöglichkeiten direkt vor der Haustür zu verwirklichen.
•Fenster 2000
•Wasserleitungen teilweise erneuert
•Wintergarten
•Süd-West Grundstück
•Schlafzimmer mit Bad en Suite
•Großer Partykeller/Hobbyraum
•Grundwasserbrunnen
•Garage
•Und vieles mehr…
