Dieses gepflegte Reihenmittelhaus wurde im Jahr 1966 in massiver Bauweise errichtet und präsentiert sich heute in einem äußerst ordentlichen und bezugsfreien Zustand. Es bietet ideale Voraussetzungen für Paare oder Familien, die ein sofort nutzbares Zuhause in gefragter Lage von Kempen suchen. Schulen sowie Geschäfte des täglichen Bedarfs befinden sich in unmittelbarer Nähe und unterstreichen die Attraktivität des Standorts.
Bereits beim Betreten des Hauses überzeugt die durchdachte Raumaufteilung. Im Erdgeschoss befinden sich ein Gäste-WC, die Küche sowie das großzügige Wohnzimmer mit einem herrlichen Blick in den Garten. Der Wohn- und Essbereich bietet ausreichend Platz für einen großen Esstisch und eine gemütliche Sofalandschaft. Bei Bedarf besteht zudem die Möglichkeit, einen Kamin zu integrieren und so eine besonders behagliche Atmosphäre zu schaffen. Direkt angeschlossen an das Wohnzimmer ist die außergewöhnlich große, überdachte Terrasse. Sie ist seitlich gemauert und bietet dadurch ein hohes Maß an Privatsphäre. Hier findet problemlos die ganze Familie Platz – ob für gesellige Abende, entspannte Stunden im Freien oder Feierlichkeiten im Freundeskreis. Der Blick ins Grüne sowie der gewachsene Pflanzenbestand sorgen dafür, dass kaum Nachbarimmobilien einsehbar sind. Der Garten ist insgesamt hervorragend geschützt und liebevoll angelegt. Eine installierte Grundwasserpumpe erleichtert die Bewässerung, und dank Mähroboter pflegt sich der Rasen nahezu von selbst.
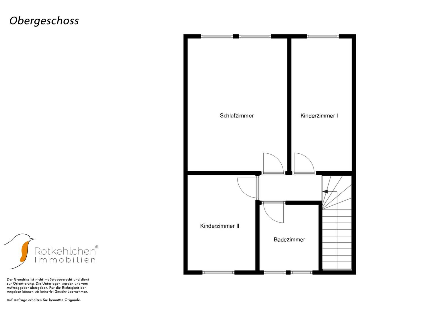
Im Dachgeschoss stehen drei gut geschnittene Zimmer zur Verfügung, die flexibel als Schlafzimmer, Kinderzimmer oder Homeoffice genutzt werden können. Besonders hervorzuheben ist das im Jahr 2014 vollständig modernisierte Badezimmer mit bodentiefer Dusche, das zeitgemäßen Wohnkomfort bietet. Für zusätzliche Barrierearmut wurden im Hausflur sowie im Kellerabgang weitere Handläufe angebracht.
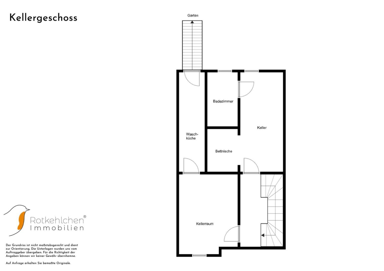
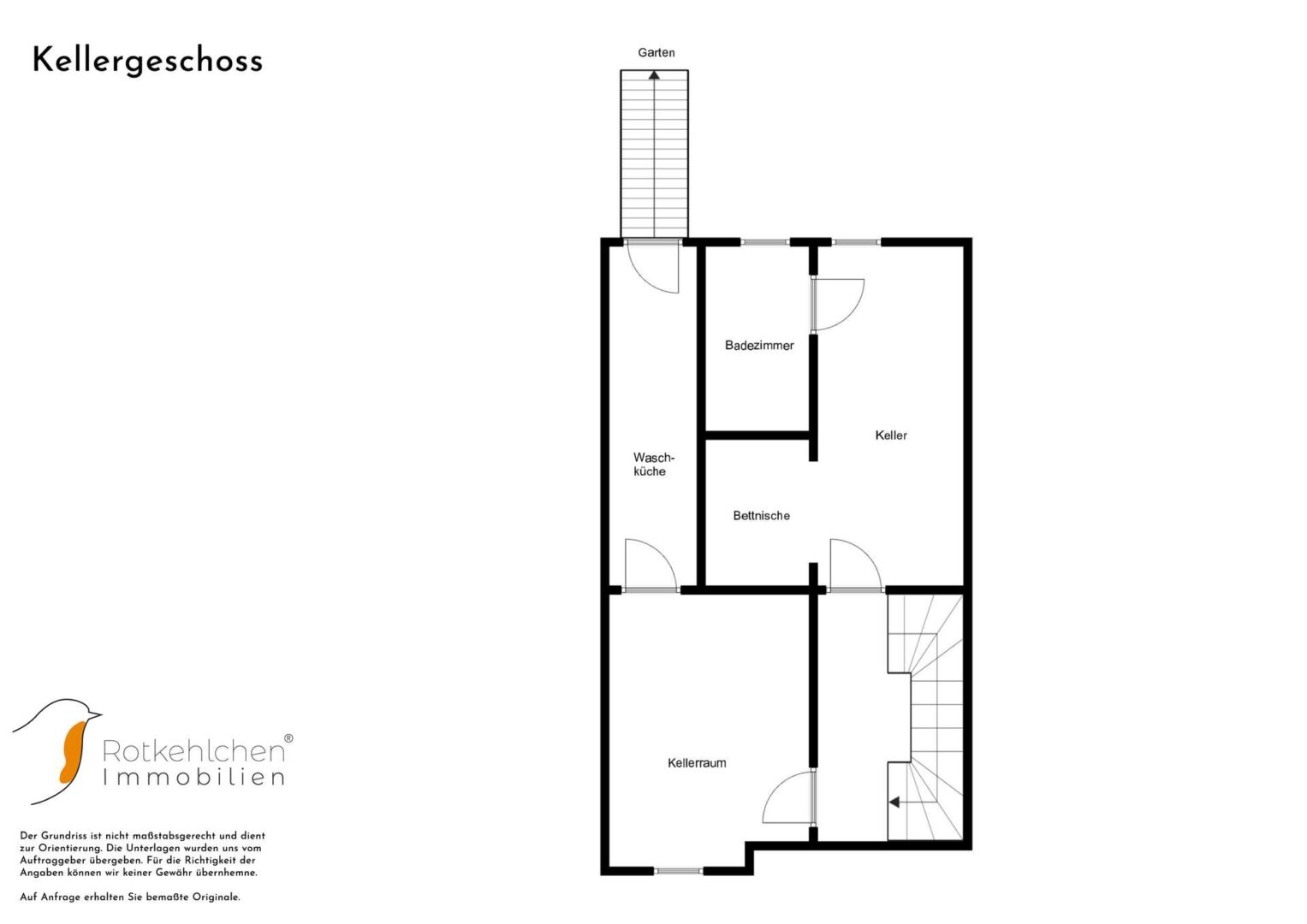
Das Kellergeschoss bietet neben klassischen Abstellflächen und einem Hauswirtschaftsraum ein zusätzliches Zimmer mit eigenem Bad und Fenster. Dieser Bereich eignet sich ideal als Gästezimmer, Hobbyraum oder Rückzugsort. Bitte beachten Sie, dass dieser Raum nicht Bestandteil der offiziellen Wohnfläche ist.
Auch technisch überzeugt die Immobilie: Die Energieversorgung erfolgt über Fernwärme. Die Fenster stammen überwiegend aus den 1980er- und 1990er-Jahren. Im Wohnzimmer, der Küche und dem Elternschlafzimmer sind elektrische Rollläden installiert, während die übrigen Rollläden manuell bedienbar sind. Das Flachdach wurde im Jahr 2022 neu abgedichtet, sodass hier bereits eine wichtige Modernisierungsmaßnahme durchgeführt wurde.
Am Ende des Gartens befindet sich zudem ein Ausgang, der sich ideal dafür eignet, Fahrräder oder Mülltonnen bequem zur Straße zu bringen.
Abgerundet wird dieses attraktive Angebot durch eine Garage auf einem nahegelegenen Garagenhof, die fußläufig erreichbar ist und bereits im Kaufpreis enthalten ist.
Insgesamt handelt es sich um ein rundum stimmiges und sehr gepflegtes Objekt mit viel Platz, Privatsphäre und Entwicklungspotenzial – ideal für alle, die ein solides Zuhause in guter Lage von Kempen suchen.
Highlights:
•3 Schlafzimmer
•+ Erweiterter Kellerraum mit Badezimmer
•2014 Modernisiertes Badezimmer
•2022 Abgedichtetes Flachdach
•Garage
•Garten mit Südausrichtung
•Grundwasserpumpe
•Rasenmähroboter
•Option Kamin
•XXL Überdachte Terrasse
•Fernwärme
Und vieles vieles mehr…




















