Zum Verkauf steht ein voll vermietetes Wohnhaus, das sowohl durch seine zentrale Lage als auch durch seine langfristig sicheren Mieteinnahmen überzeugt. Insgesamt stehen 3 Wohneinheiten sowie drei Stellplätze und eine Garage zur Verfügung.
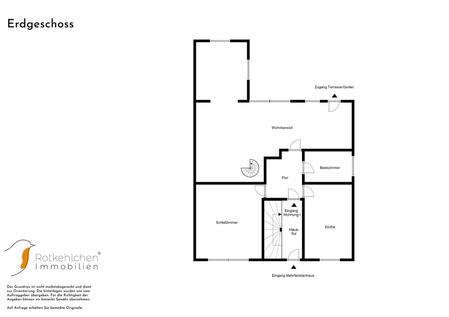
Wohnung- Erdgeschoss ca. 69 m².
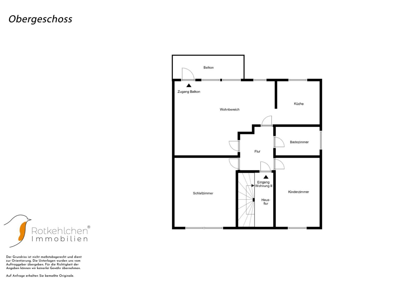
Wohnung-Obergeschoss ca. 69 m².
Wohnung-Dachgeschoss ca. 22 m².
Jahresnettokaltmiete von 19.200 EUR
Diese Immobilie ist eine hervorragende Kapitalanlage und bereits voll vermietet. Die meisten Mieter wohnen hier bereits seit Jahren und fühlen sich in ihrem Zuhause ausgesprochen wohl. Bei Mieterwechseln konnten immer schnell neue Mieter gefunden werden. So gab es in den letzten Jahren nahezu keine Leerstände.
Der Erdgeschosswohnung steht ein großzügiger Garten zur alleinigen Nutzung zur Verfügung. Die Wohnung im Obergeschoss verfügt über einen überdachten Balkon. Diese Mehrfamilienhaus wurde stets mit viel Liebe und Sorgfalt gepflegt und instandgehalten. Erst kürzlich wurden größere Investitionen getätigt, darunter die Erneuerung der Heizung (2018) sowie eine umfassende Dachsanierung (2012). Auch Kunststofffenster mit Doppelverglasung wurden bereits eingebaut. Diese Maßnahmen stellen sicher, dass in naher Zukunft nicht mit größeren Kosten für die Instandhaltung zu rechnen ist. Das Gebäude hat keinen Aufzug = weniger Kosten und Wartungsaufwand. Selbstverständlich steht allen Mietern ein Kellerraum zur Verfügung.
Mit einer aktuellen Jahresnettokaltmiete von 19.200 EUR bietet das Objekt von Beginn an eine attraktive Rendite mit weiterem Steigerungspotenzial. Vollständige Informationen sowie eine detaillierte Übersicht der Mietverhältnisse stellen wir Ihnen gerne auf Anfrage zur Verfügung. Wir freuen uns auf Ihre Kontaktaufnahme und stehen Ihnen für weitere Fragen gerne zur Verfügung.
Nutzen Sie diese Gelegenheit, eine bestens gepflegte Immobilie im Zentrum von Willich zu erwerben und profitieren Sie von einer stabilen und langfristigen Kapitalanlage.
Gerne informieren wir Sie in einem persönlichen Gespräch über weitere Ertragsmöglichkeiten, die mit der Immobilie erzielt werden können.













