Zum Verkauf steht ein historisches Stadthaus, erbaut um 1850, mit einzigartigem Charme. Das Haus wurde durch die Verarbeitung zahlreicher Holzelemente gestaltet und bietet daher ein einzigartig gemütliches Wohngefühl. Stets instandgehalten und liebevoll gepflegt, präsentiert sich diese Immobilie als wahres Juwel für Liebhaber. Die Innenstadt liegt vor der Haustüre und der Bahnhof ist nur wenige Gehminuten entfernt.
Im Erdgeschoss erwartet Sie ein großzügiger Wohn- und Essbereich, der nahtlos an die zentral gelegene Küche anschließt. Bitte beachten Sie, dass die Küche nicht im Verkauf inbegriffen ist. Zusätzlich befindet sich im Erdgeschoss ein im Jahr 2009 neu gestaltetes, großzügiges Badezimmer. Ein weiteres Zimmer, derzeit als Garderobe genutzt, könnte auch als Home-Office dienen oder durch vorhandene Anschlüsse zur Küchenverlegung umfunktioniert werden.
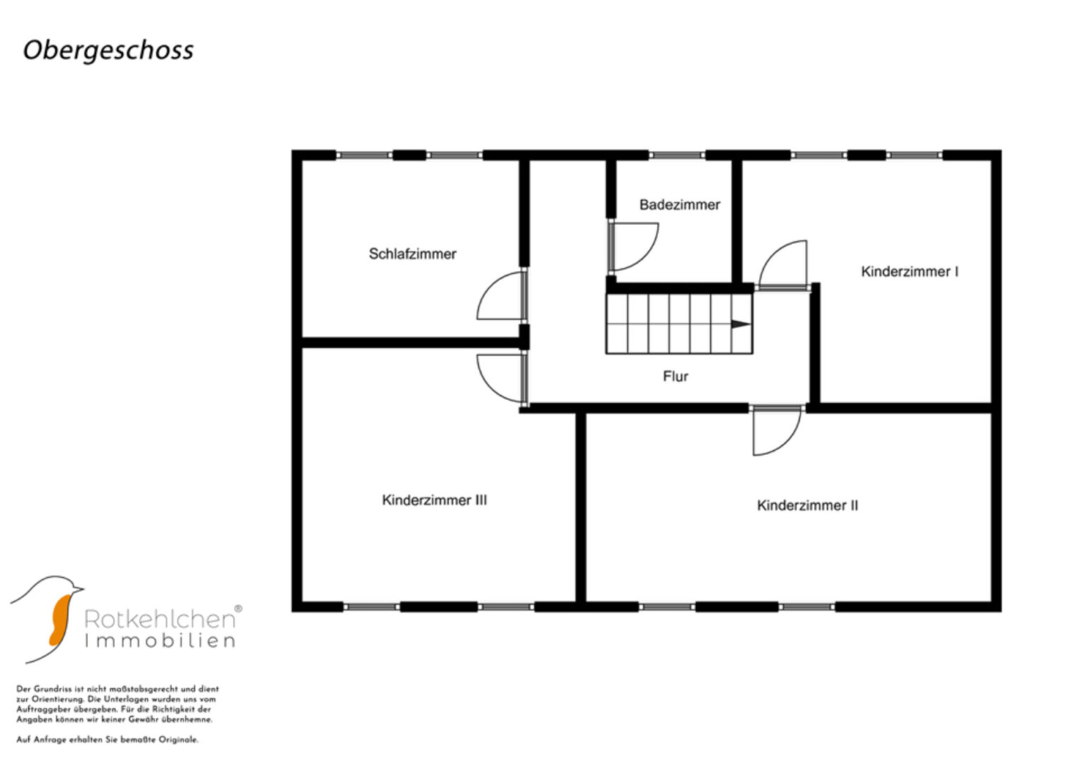
Im Dachgeschoss stehen Ihnen insgesamt vier Schlafzimmer zur Verfügung, jedes mit seinem eigenen Charme. Ein weiteres, vollausgestattetes Badezimmer bedarf einer kleinen Modernisierung. Der bereits ausgebaute Spitzboden bietet zahlreiche Nutzungsmöglichkeiten.
Der Außenbereich besticht durch einen gemütlichen Innenhof, den Sie nach Ihren Wünschen gestalten können – Ihre eigene kleine Oase mitten in Nieukerk. Ein rückliegender Bau eignet sich ideal als Werkstatt, Hobbyraum oder Kellerersatz. Mit Stromanschluss ausgestattet, eröffnen sich hier eine vielfältige Nutzungsmöglichkeit. Mit etwas handwerklichem Geschick und kleinen Investitionen haben Sie hier die Gelegenheit, eine ganz besondere Immobilie im Herzen von Nieukerk zu erwerben.
Highlights:
-Fenster teilweise 2000
-Haustüre 2006
-Badezimmer EG 2009
-Zentrale Lage
-Bis zu 5 Schlafzimmer
-Echtholzböden
-Innenhof
-Anbau/Schuppen
-Ausgebauter Spitzboden
-Glasfaseranschluß ist installiert (z. Z. 500 GB) und eine Netzwerkverkabelung in fast jedem Raum vorhanden)
Und vieles mehr…

















