*Bitte machen Sie bereits bei der Anfrage genaue Angaben zu Ihrer Person (Personenanzahl, Alter, Beruf etc.).*
Der erst 2021 renovierte Bungalow mit ca. 135m² Wohnfläche und fast 1000m² Grundstück eignet sich ideal für Paare und Familien. Ruhig gelegen befinden sich Einkaufsmöglichkeiten direkt um die Ecke.
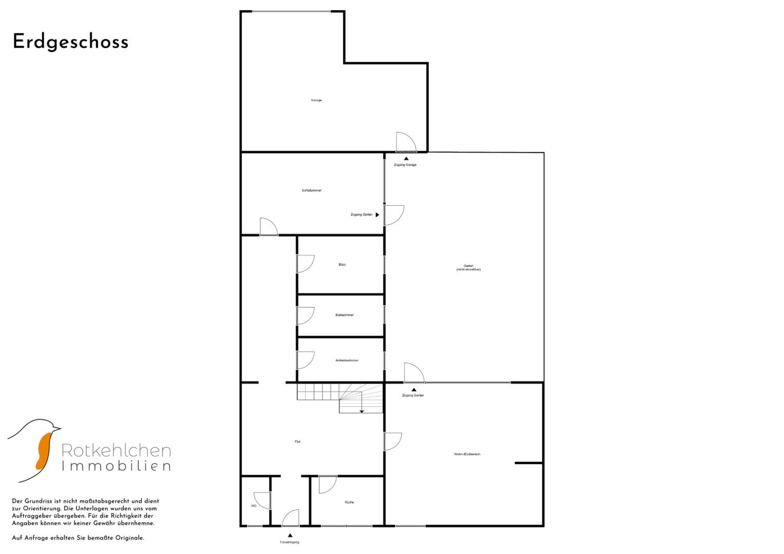
Im großzügigen Eingangsbereich befindet sich das Gäste-WC und ein Zugang zur Küche. Erst im Februar 2023 maßangefertigt kann die Küche nach Absprache von den Vormietern übernommen werden. Der helle Wohn-/Essbereich mit Zugang und Blick in den Garten lädt zum Verweilen ein. Nicht einsehbar genießen Sie hier volle Privatsphäre. Zudem steht Ihnen eine eigene Sauna im Außenbereich zur Verfügung.
Im hinteren Bereich befinden sich die Garderobe, das Tageslichtbad mit Dusche und Badewanne sowie das Büro. Am Ende des Flurs befindet sich das Schlafzimmer, von dem aus man wiederum den herrlichen Blick in den eigenen Garten genießen kann. Dank Ostausrichtung wird man hier von der Sonne geweckt. Sämtliche Wohnräume überzeugen mit Parkettböden und Fußbodenheizung.
Der Bungalow ist unterkellert und bietet im Souterrain mit einer Nutzfläche von ca. 35m² die ideale Möglichkeit für ein weiteres Zimmer mit Tageslicht und Zugang zum Garten.
Zusätzlich befinden sich im Keller die Waschküche, der Heizungskeller und ein Vorratsraum.
Zum Bungalow gehört eine Garage, die durch den Garten ins Haus führt. Diese bietet ausreichend Platz für ein Auto, Gartengeräte und Fahrräder. Ein Grundwasserbrunnen zur Gartenbewässerung steht ebenfalls zur Verfügung.
Info: Die Nebenkosten beinhalten alle Abgaben, wie Fernwärme, Wasser, Strom, Versicherungen, Müll und Grundsteuer etc.















