Dieses charmante Reihenmittelhaus in Tönisvorst verbindet eine angenehme Wohnatmosphäre mit praktischer Raumaufteilung – ideal für Paare oder kleine Familien, die ein Zuhause mit Herz suchen.
Die Lage ist ideal für Familien, da ein Spielplatz direkt vor der Tür liegt, Einkaufsmöglichkeiten in fünf Minuten erreichbar sind und sich Kindergärten sowie Schulen in unmittelbarer Nähe befinden.
Im Erdgeschoss befindet sich im Eingangsbereich ein praktisches Gäste-WC, bevor Sie der helle, offene Wohn- und Essbereich mit integrierter Küche und herrlichem Blick in den liebevoll angelegten Garten empfängt. Hier verschmelzen Innen- und Außenraum zu einem idyllischen Rückzugsort.
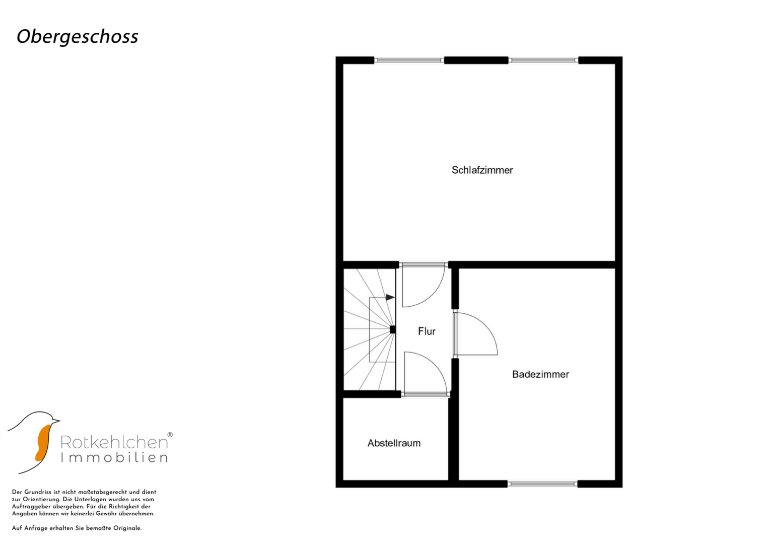
Das erste Obergeschoss bietet ein gemütliches Schlafzimmer sowie ein großzügiges Tageslichtbad mit separater Badewanne, Dusche und viel Platz. Ein zusätzlicher Abstellraum sorgt hier für praktische Stauraummöglichkeiten. Die Etage ist mit Echtholzparkett ausgestattet, was dem Haus eine warme, natürliche Note verleiht.
Im Dachgeschoss erwarten Sie ein weiteres Kinderzimmer und ein Durchgangszimmer mit Zugang zum ausgebauten Spitzboden – ideal nutzbar als Spielzimmer, Büro oder kreativer Rückzugsort.
Das Objekt ist voll unterkellert und bietet so zusätzlichen Stauraum sowie vielseitige Nutzungsmöglichkeiten. Zum Haus gehören außerdem eine Garage und ein Gartenhaus mit Stromanschluss – praktisch für Hobbys oder als zusätzlicher Abstellraum.
Darüber hinaus besteht Erweiterungspotenzial für einen Wintergarten und eine zusätzliche Garage zur Unterbringung eines weiteren Fahrzeugs, da in der Vergangenheit bereits eine entsprechende Baugenehmigung erteilt wurde.
Highlights:
•Großzügiger Garten
•Gefragte Lage in Tönisvorst
•Offener Wohn- und Essbereich mit direktem Blick in den Garten
•Voll unterkellert
•Großzügiges Tageslichtbad mit Badewanne und separater Dusche
•Echtholzparkett im Obergeschoss
•Garage und Stellplatz


























