Dieses Mehrfamilienhaus befindet sich am Ende einer verkehrsberuhigten Straße, eingebettet zwischen dem beliebten Cambridge-Park und der historischen Kempener Altstadt. Die Innenstadt mit ihren vielfältigen Geschäften, Restaurants und Dienstleistungen ist in nur ca. fünf Minuten fußläufig erreichbar – eine Lage, die sowohl Mieter als auch Investoren überzeugt.
Objektbeschreibung
Das Mehrfamilienhaus wurde 1959 mit insgesamt vier Wohneinheiten errichtet. Zur Immobilie gehören drei Stellplätze sowie eine Garage mit zusätzlichem Außenstellplatz. Das Gebäude wurde fortlaufend instandgehalten und gepflegt, sodass solide Mieteinnahmen ohne unmittelbaren Investitionsbedarf gewährleistet sind. Besonders interessant: Die großzügige Erdgeschosswohnung mit Parkettboden und Kamin wird nach Absprache bezugsfrei – eine ideale Gelegenheit für Eigennutzer oder zur Nutzung durch Familienmitglieder.
Ein besonderer Mehrwert ergibt sich aus dem bereits 1982 genehmigten, jedoch nie umgesetzten Ausbau des Dachgeschosses. Die Planung sah zwei zusätzliche Wohneinheiten vor, die im Treppenhaus bereits mitberücksichtigt wurden. Aufgrund dieser Voraussetzungen bestehen ausgezeichnete Chancen, die Wohneinheiten nach Abstimmung mit dem Bauamt zu realisieren – eine Erweiterung auf insgesamt sechs Einheiten ist somit realistisch.
Fazit: Steigerbare Mieten, die mögliche Erweiterung um zwei zusätzliche Wohneinheiten sowie die weiterhin positive Preisentwicklung in dieser begehrten Lage bieten ein starkes Entwicklungspotenzial.
Aufteilung & Mieteinnahmen
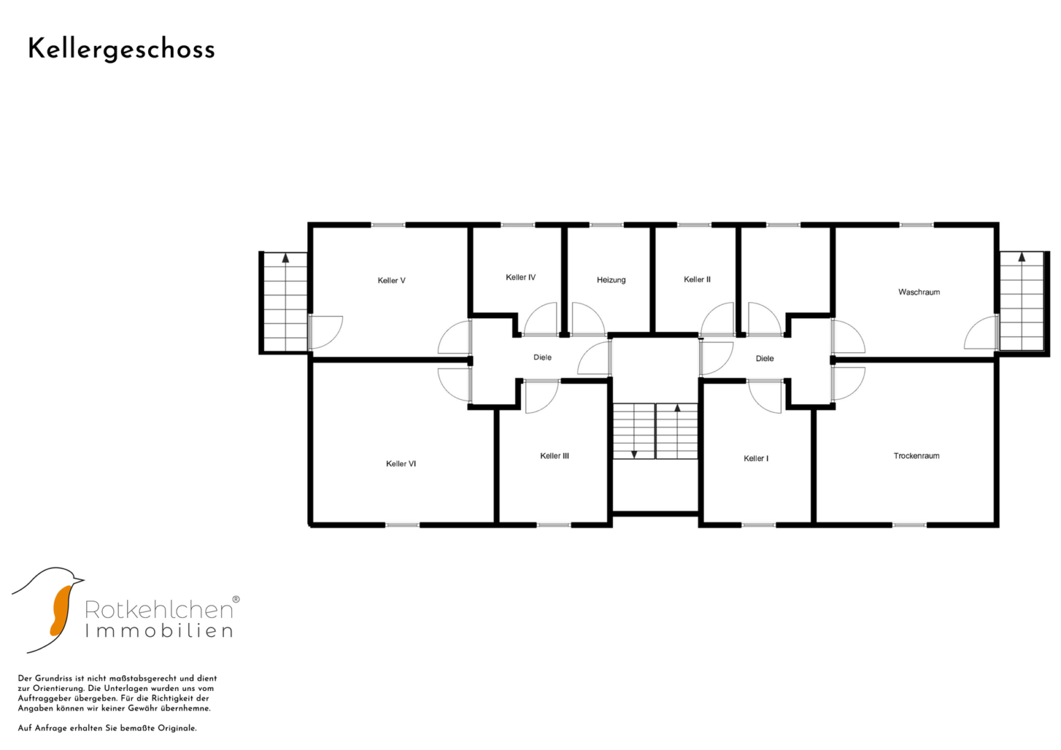
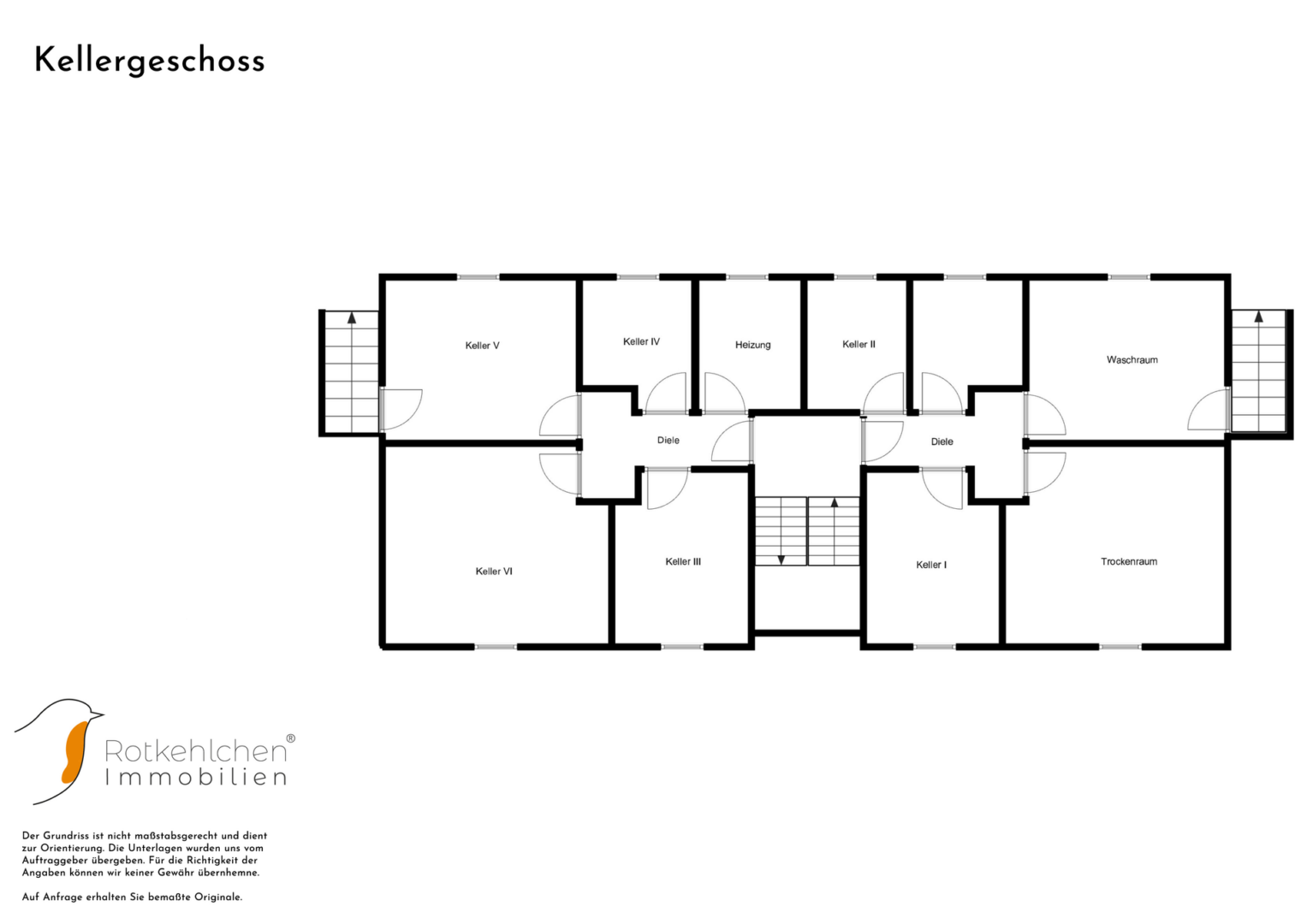
Die vier bestehenden Wohneinheiten überzeugen durch gut geschnittene Grundrisse und Tageslichtbäder. Die Warmwasseraufbereitung erfolgt über Durchlauferhitzer (teils Gas, teils Strom). Die zentrale Gasheizung (Weishaupt, Baujahr 2021) wird über ein Contracting-Modell betrieben. Glasfaseranschluss ist bereits vorhanden. Zusätzlich stehen ausreichend Kellerräume sowie ein gemeinschaftlicher Waschraum zur Verfügung. Alle Wohnungen besitzen entweder einen Balkon oder Garten.
Erdgeschoss links
•Wohnfläche: ca. 104 m²
•Zimmer: bis zu 3 Schlafzimmer
•Besonderheiten: Anbau/Erweiterung 1995, Gartennutzung, Parkettboden, Kamin
•Stellplätze: Garage + Außenstellplatz
•Warmwasser: Durchlauferhitzer (Strom)
•Status: vom Verkäufer bewohnt; Bezugsfrei nach Absprache.
Optional kann eine marktübliche Miete für eine festgelegte Mietdauer vereinbart werden.
Erdgeschoss rechts
•Wohnfläche: ca. 58 m²
•Zimmer: bis zu 2 Schlafzimmer
•Ausstattung: Balkon
•Stellplatz: 1
•Warmwasser: Durchlauferhitzer (Gas)
•Kaltmiete: (Im Exposé auf Anfrage)
•Aktuelle Nebenkosten: (Im Exposé auf Anfrage)
•Vermietet seit: (Im Exposé auf Anfrage)
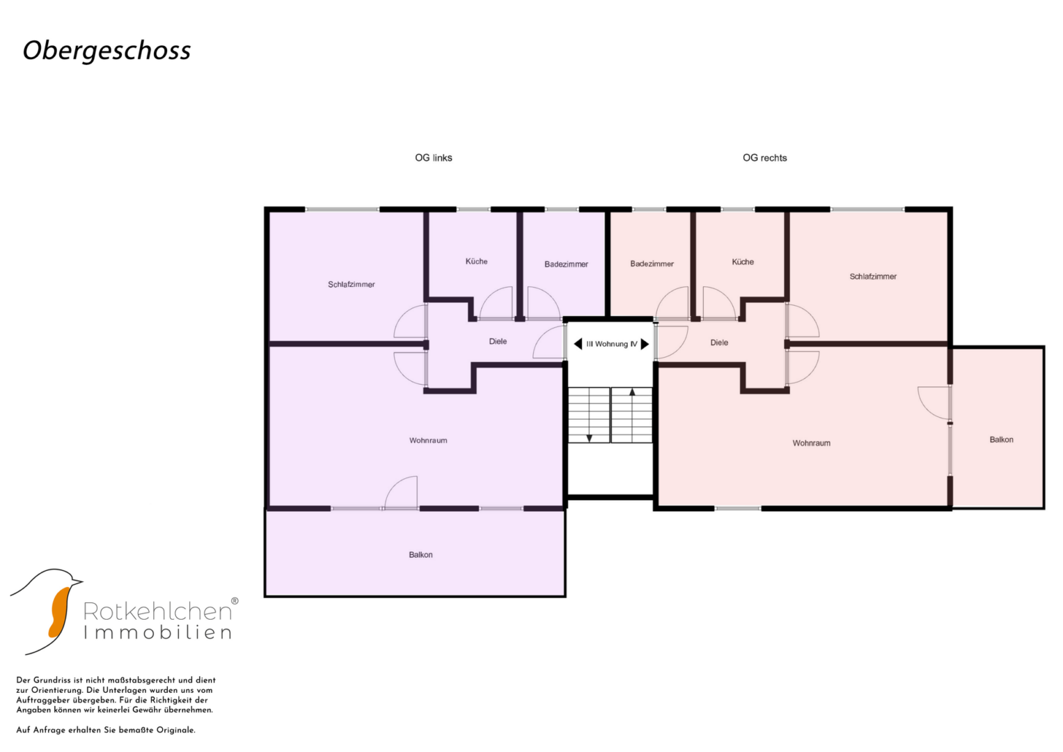
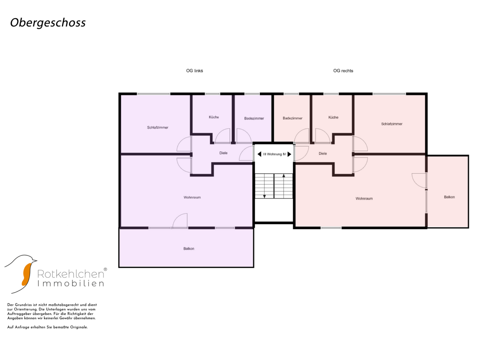
Obergeschoss links
•Wohnfläche: ca. 58 m²
•Zimmer: 1 Schlafzimmer
•Ausstattung: Balkon
•Warmwasser: Durchlauferhitzer (Gas)
•Kaltmiete: (Im Exposé auf Anfrage)
•Aktuelle Nebenkosten: (Im Exposé auf Anfrage)
•Vermietet seit: (Im Exposé auf Anfrage)
•Status: derzeit vermietet, wird zum 01.01.2026 bezugsfrei
Obergeschoss rechts
•Wohnfläche: ca. 58 m²
•Zimmer: 1 Schlafzimmer
•Ausstattung: Balkon
•Stellplatz: 1
•Warmwasser: Durchlauferhitzer (Strom)
•Kaltmiete: (Im Exposé auf Anfrage)
•Aktuelle Nebenkosten: (Im Exposé auf Anfrage)
•Vermietet seit: (Im Exposé auf Anfrage)
Dachgeschoss (links & rechts)
Für das Dachgeschoss besteht eine Genehmigung aus dem Jahr 1982 zum Ausbau von zwei weiteren Wohneinheiten. Die Grundstruktur ist bereits angelegt, der Ausbau jedoch nie erfolgt. Aktuell werden die Flächen als Abstellräume genutzt. Potenzial: zwei Wohneinheiten mit jeweils ca. 42 m² Wohnfläche.
IST-MIETEINAHMEN JAHR / 17.820 EUR
Da die Erdgeschosswohnung derzeit nicht vermietet, sondern eigengenutzt wird, liegen aktuell keine Mieteinnahmen vor. Die Wohnung wird nach Absprache jedoch bezugsfrei übergeben.
SOLL-MIETEINAHMEN INKL. EG-Wohnung JAHR / mindestens 30.300 EUR
Für die Erdgeschosswohnung wurde ein Ansatz von 10 €/m² gewählt; bei einer Neuvermietung ist jedoch ein höherer Mietpreis realisierbar.
Ausstattung & Sonstiges
•4 Wohneinheiten
•3 Stellplätze + Garage mit vorliegenden Stellplatz
•Neue Haustür (2000)
•Glasfaseranschluss vorhanden
•Unterstand für Fahrräder
•Warmwasser via Gas- oder Strom-Durchlauferhitzer
•Zentralheizung Weishaupt (2021, Contracting/Leasing)
•Kunststofffenster mit Doppelverglasung (1984)
•Tageslichtbäder (80er–90er Jahre)
•Bodenbeläge: Parkett, Laminat, Teppich, Fliesen
•Dach derzeit nicht gedämmt
•Großes Ausbaupotenzial im Dachgeschoss
•Freiwerdende Erdgeschosswohnung mit Garten in zentraler Lage
Weitere Bilder und Daten im Exposé auf Anfrage.



































