Dieses charmante Reihenmittelhaus aus dem Jahr 1989 überzeugt durch eine klassische und zugleich effiziente Raumaufteilung, die jeden Quadratmeter sinnvoll nutzt. Mit bis zu vier Schlafzimmern und einer durchdachten Raumaufteilung ist dieses Haus ideal für Familien, die ein Zuhause mit viel Platz und Flexibilität suchen.
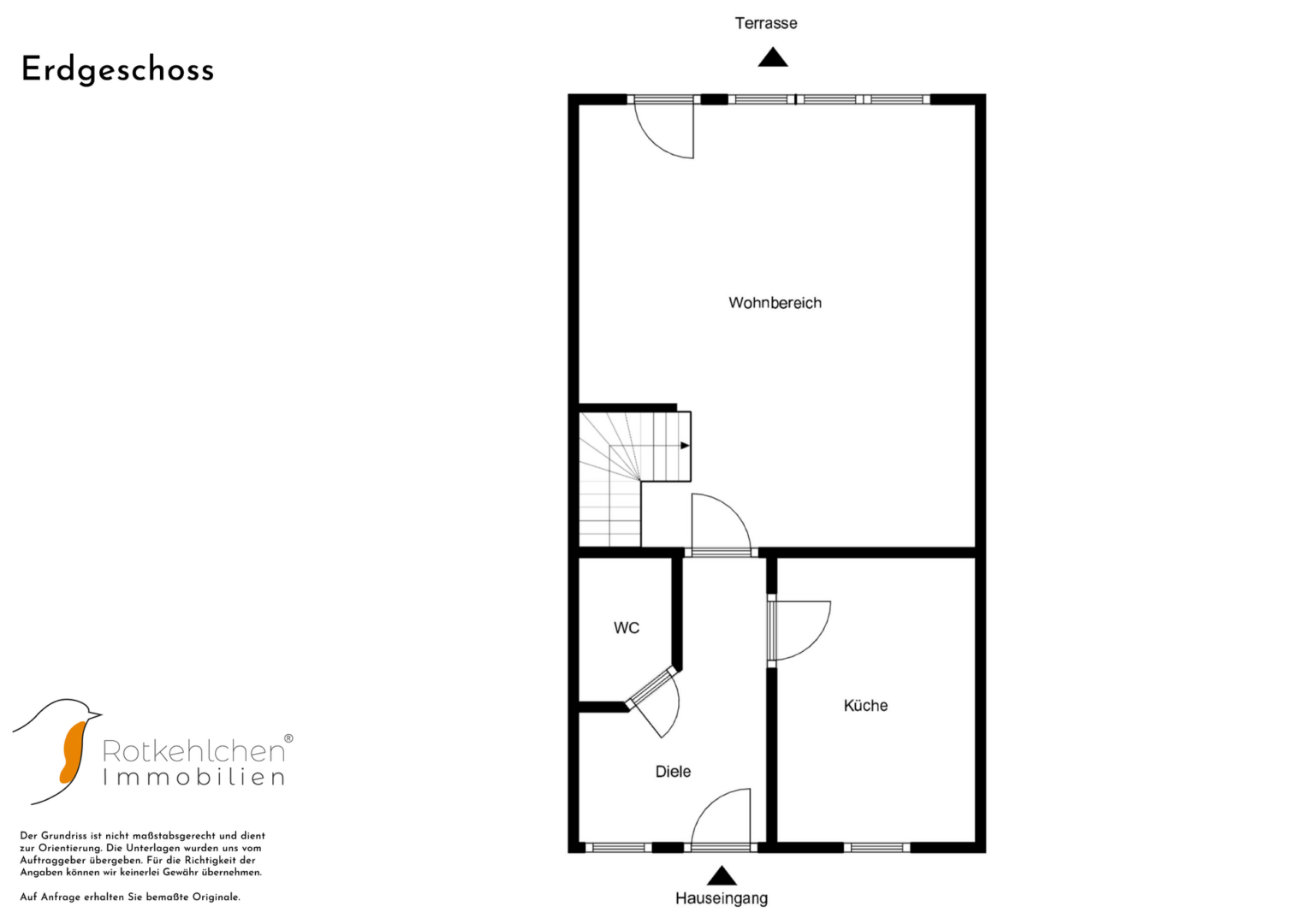
Im Erdgeschoss angekommen, empfängt Sie ein großzügiges und lichtdurchflutetes Wohnzimmer, von dem aus Sie den herrlichen Blick in den Garten genießen können. Die Ausrichtung nach Südwesten sorgt dafür, dass Sie auch nach Feierabend noch viele Sonnenstunden im Freien verbringen können. Ergänzt wird das Erdgeschoss durch eine separat gelegene Küche, die mit einer modernen, weißen Einbauküche ausgestattet ist. Ein Gäste-WC mit Dusche im Eingangsbereich rundet das Angebot ab.
Im Obergeschoss befinden sich aktuell zwei Kinderzimmer sowie das Hauptbadezimmer. Falls mehr Platz benötigt wird, lässt sich eines der Kinderzimmer problemlos in zwei separate Räume aufteilen, so dass insgesamt 3 Schlafzimmer auf dieser Etage entstehen können. Darüber hinaus steht hier ein zeitloses Duschbad mit einer Badewanne und WC zur Verfügung.
Zur Erweiterung des Wohnraums steht Ihnen noch das Dachgeschoss zur Verfügung. Dieses wird aktuell als Elternschlafzimmer genutzt, kann aber optimal als Homeoffice oder Hobbyraum genutzt werden.
Die Immobilie ist vollständig unterkellert und schafft dadurch zusätzlichen Stauraum sowie vielfältige Nutzungsmöglichkeiten. Im Kellergeschoss befindet sich zusätzlich ein großzügiger Hobbyraum mit Fenster und komfortabler Deckenhöhe, der vielfältige Nutzungsmöglichkeiten bietet.
Zum Haus zählt auch eine Garage mit Stromanschluss.
Die vorhandene Heizungsanlage der Marke Junkers stammt aus dem Baujahr 1989 und funktioniert einwandfrei, kann jedoch langfristig durch eine energieeffizientere Variante ersetzt werden.
Highlights:
•Energieeffizienzklasse A, (Verbrauchsausweis)
•Bis zu 4 Schlafzimmer,
• Zwei Bäder
•Kunststofffenster im EG von 2001 mit elektrischen Rollläden,
•Fenster im OG von 2005 mit elektrischen Rollläden,
•Süd-West-Grundstück,
•Moderne Einbauküche mit Elektrogeräten (ca. 2015),
•Garage mit Stromanschluss,
•5 Meter lange Markise,
•Ruhige und familienfreundliche Lage.
und viele mehr …


















