Willkommen im Herzen der Natur! Dieses freistehende Einfamilienhaus in Krefeld bietet ein einmaliges Grundstück und eine hervorragende Grundlage um Ihre Wohnträume zu verwirklichen. Mit einigen bereits getätigten Investitionen präsentiert sich diese Immobilie als seltene Gelegenheit, Ihren Wohntraum zu gestalten.
Die Bauweise des Hauses ermöglicht sowohl die Nutzung als Zweifamilienhaus als auch als großzügiges Einfamilienhaus und perfektes Familiendomizil. Ein hohes Maß an Flexibilität zur Erweiterung der Nutzungsmöglichkeiten. Das Grundstück rund um die Immobilie ist traumhaft angelegt und bietet viel Platz für Gartenliebhaber oder Menschen, die sich nach Ruhe und Natur sehnen.
Wichtige Modernisierungsmaßnahmen wurden bereits durchgeführt. Im Jahr 2010 wurde das Dach erneuert. Zur Verbesserung des Wohnkomforts erfolgte 2000 und 2019 eine Teilmodernisierung der Elektrik und zur Verbesserung der Energieeffizienz wurden einige Fenster ausgetauscht. Der Einbau einer neuen Ölheizung im Jahr 2009 sorgt für eine effiziente Wärmeversorgung. Im Jahr 2015 wurde ein direkter Anschluss an die Kanalisation geschaffen.
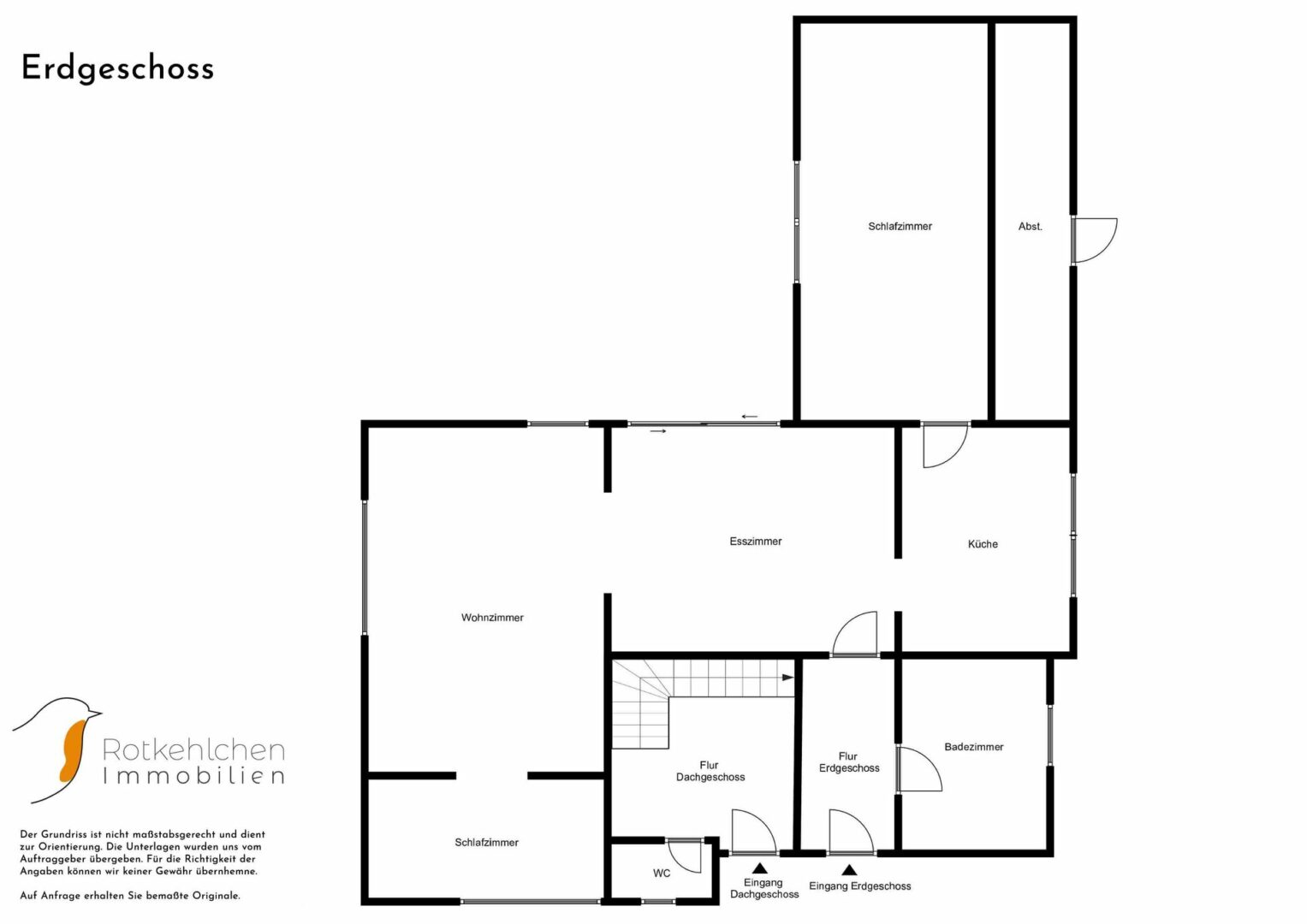
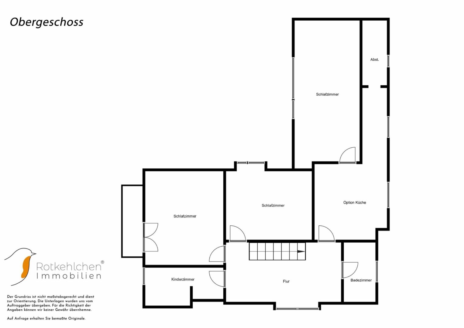
Die Raumaufteilung des Hauses ist vielfältig und passt sich Ihren Bedürfnissen an. Im Erdgeschoss befinden sich ein großes Wohnzimmer mit Blick auf den idyllischen Garten, eine geräumige Küche, ein Badezimmer und ein weiteres Zimmer, das sich hervorragend als Schlaf- oder Arbeitszimmer eignet. Das Dachgeschoss verfügt über einen eigenen Zugang, der Unabhängigkeit und Privatsphäre garantiert. Es bietet Platz für bis zu drei Schlafzimmer, ein weiteres Badezimmer und die Möglichkeit, eine zweite Küche einzurichten.
Wie Dornröschen schläft diese Immobilie mit Traumgrundstück und wartet darauf, zu neuem Leben erweckt zu werden. Mit überschaubarem Aufwand können Sie diese einmalige Lage am Fuße des Hülser Berges modernisieren und Ihr Traumhaus inmitten der Natur schaffen. Auf fast über 200qm Wohnfläche und knapp 2000qm Grundstück, stehen Ihnen alle Möglichkeiten offen, Ihre Vorstellungen von einem komfortablen und stilvollen Zuhause zu verwirklichen. Erschaffen Sie sich Ihr eigenes Paradies.


















