Dieses massiv errichtete Reihenhaus aus dem Jahr 1928 verbindet historischen Charme mit zeitgemäßem Wohnkomfort und befindet sich in zentraler Lage von Kempen-St. Hubert. Die Immobilie wurde über viele Jahre hinweg stetig instandgehalten und modernisiert und präsentiert sich heute – bis auf rein oberflächliche Modernisierungen – in einem einzugsbereiten Zustand. Mit ausreichend Platz für eine Familie, drei Schlafzimmern sowie zusätzlichem Raum für ein Homeoffice bietet dieses Haus ideale Voraussetzungen für modernes Familienleben. Bereits beim Betreten des Hauses wird der gelungene Mix aus Altbaucharakter und moderner Gestaltung deutlich. Der Eingangsbereich wurde erst 2018 neugestaltet und dabei bewusst dem Baujahrcharme der Immobilie angepasst. Hochwertige Fliesen unterstreichen den historischen Stil und sorgen zugleich für ein gepflegtes und einladendes Ambiente.
Im Erdgeschoss befinden sich eine großzügige Küche sowie der offen gestaltete Wohn- und Essbereich. Anstelle eines klassischen Gäste-WCs steht auf dieser Ebene ein vollwertiges Badezimmer zur Verfügung, das im Jahr 2006 erneuert wurde. Der Wohn- und Essbereich überzeugt nicht nur durch seine Großzügigkeit, sondern auch durch den schönen Blick in den weitläufigen Garten. Ein Kamin sorgt hier zusätzlich für eine behagliche Wohnatmosphäre.
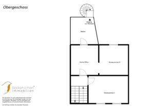
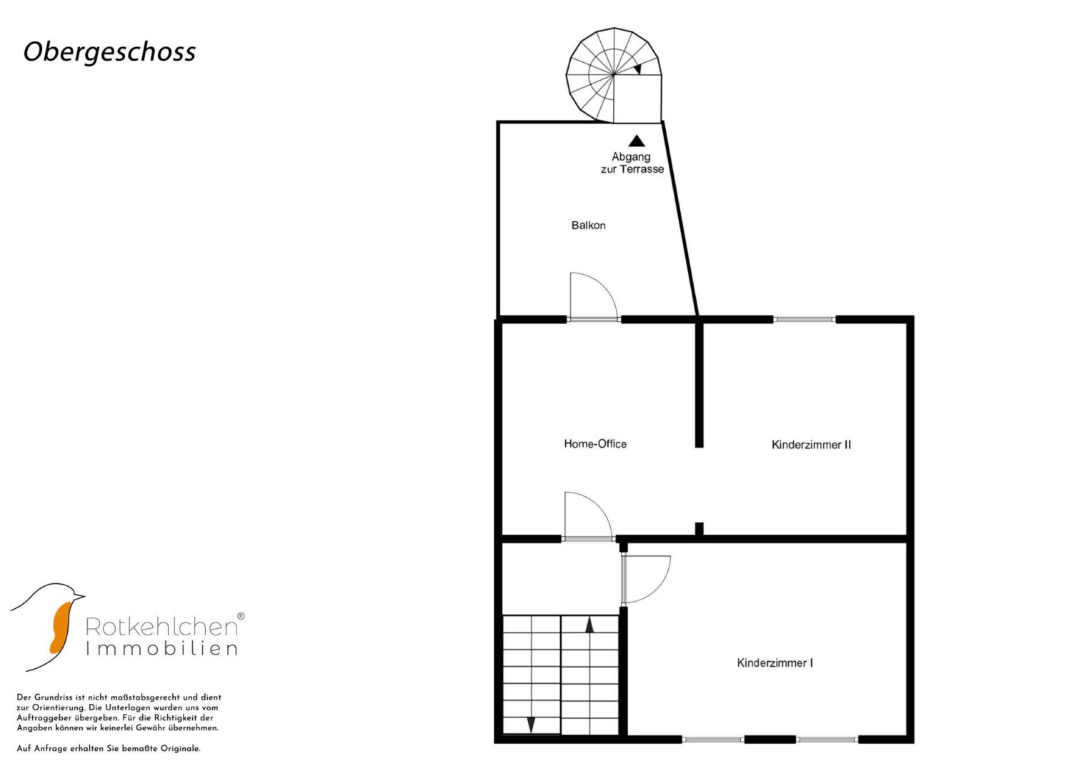
Das erste Obergeschoss bietet ein großes Kinderzimmer sowie ein weiteres Durchgangszimmer mit direktem Zugang zur Dachterrasse. Daran anschließend befindet sich ein weiteres Schlafzimmer. Derzeit wird dieser Bereich flexibel als zwei Kinderzimmer und Homeoffice genutzt. Die Terrasse im ersten Obergeschoss stellt ein besonderes Highlight der Immobilie dar. Sie bietet großzügigen Platz, einen traumhaften Blick ins Grüne und ist über eine Wendeltreppe direkt mit dem Garten verbunden. Im darüber liegenden Dachgeschoss, das offiziell zu Wohnzwecken ausgebaut wurde, befinden sich ein Raum, der aktuell als Ankleide genutzt wird, sowie das Elternschlafzimmer mit eigenem Badezimmer. Das Badezimmer wurde erst 2024 vollständig neugestaltet und entspricht modernen Ansprüchen. Eine Klimaanlage im Elternschlafzimmer sorgt auch an warmen Tagen für ein angenehmes Raumklima. Ein großzügiger Gewölbekeller bietet reichlich Stauraum und verfügt zudem über ausreichend Platz für Waschmaschine und Trockner.
Ein echtes Highlight dieser Immobilie ist der große, vielseitig nutzbare Garten mit Terrasse und verschiedenen Sitzmöglichkeiten. Ob gemütliche Sitzecke direkt am Haus, gesellige Grillabende unter der überdachten Terrasse oder sportliche Aktivitäten auf der großen Rasenfläche – hier kommt jedes Familienmitglied auf seine Kosten. Über eine Wendeltreppe besteht zudem ein direkter Zugang von der Gartenebene zur Dachterrasse und damit ein zusätzlicher Zugang ins erste Obergeschoss.
Am Ende des Grundstücks befindet sich eine Doppelgarage mit Stromanschluss sowie vorgelagerten Stellplätzen, die komfortable Parkmöglichkeiten bieten.
Die moderne Gasheizung mit Warmwasserspeicher wurde erst 2021 installiert und erfüllt aktuelle technische und energetische Anforderungen. Insgesamt handelt es sich um ein äußerst stimmiges Gesamtpaket: ein gepflegtes, charaktervolles Reihenhaus mit viel Platz, attraktivem Garten und moderner Technik – ideal für Familien, die zentral wohnen und dennoch nicht auf Freiraum verzichten möchten.
Highlights/Modernisierungen:
1999 - Einbau der Wendeltreppe im Garten
2006 - Erneuerung des Badezimmers im Erdgeschoss
2010 - Teilweise Erneuerung der Elektrik
2012 - Einbau eines Kunststofffensters in der Küche
2014 - Erneuerung des Fensters im Flurbereich
2015 - Austausch der Terrassentür sowie weiterer Fenster
2017 - Neugestaltung des Gartens
2017 - Schlafzimmers Dachgeschoss Dämmung und Einbau eines Veluxfensters
2018 - Neugestaltung des Eingangsbereichs mit Fliesenboden
2018 - Erneuerung der Terrasse inklusive Überdachung
2018 - Flur neu verputzt, Treppe geschliffen und mit neuem Teppich versehen
2018 - Austausch der Glasscheibe der Haustür
2019 - Einbau eines Kamins
2020 - Installation einer Klimaanlage im Dachgeschoss
2021 - Einbau einer Gasheizung mit Warmwasserspeicher
2024 - Vollständige Erneuerung des Badezimmers im Dachgeschoss
