*Bitte machen Sie bereits bei der Anfrage genaue Angaben zu Ihrer Person (Personenanzahl, Alter, Beruf etc.).*
In begehrter Lage von Kempen erwartet Sie diese außergewöhnliche Immobilie mit hochwertigem Wohnambiente. Den historischen Ortskern sowie zahlreiche Einkaufsmöglichkeiten erreichen Sie bequem zu Fuß in wenigen Minuten.
Die großzügige Wohnfläche von ca. 160 m² erstreckt sich über drei Etagen und bietet ein durchdachtes Raumkonzept.
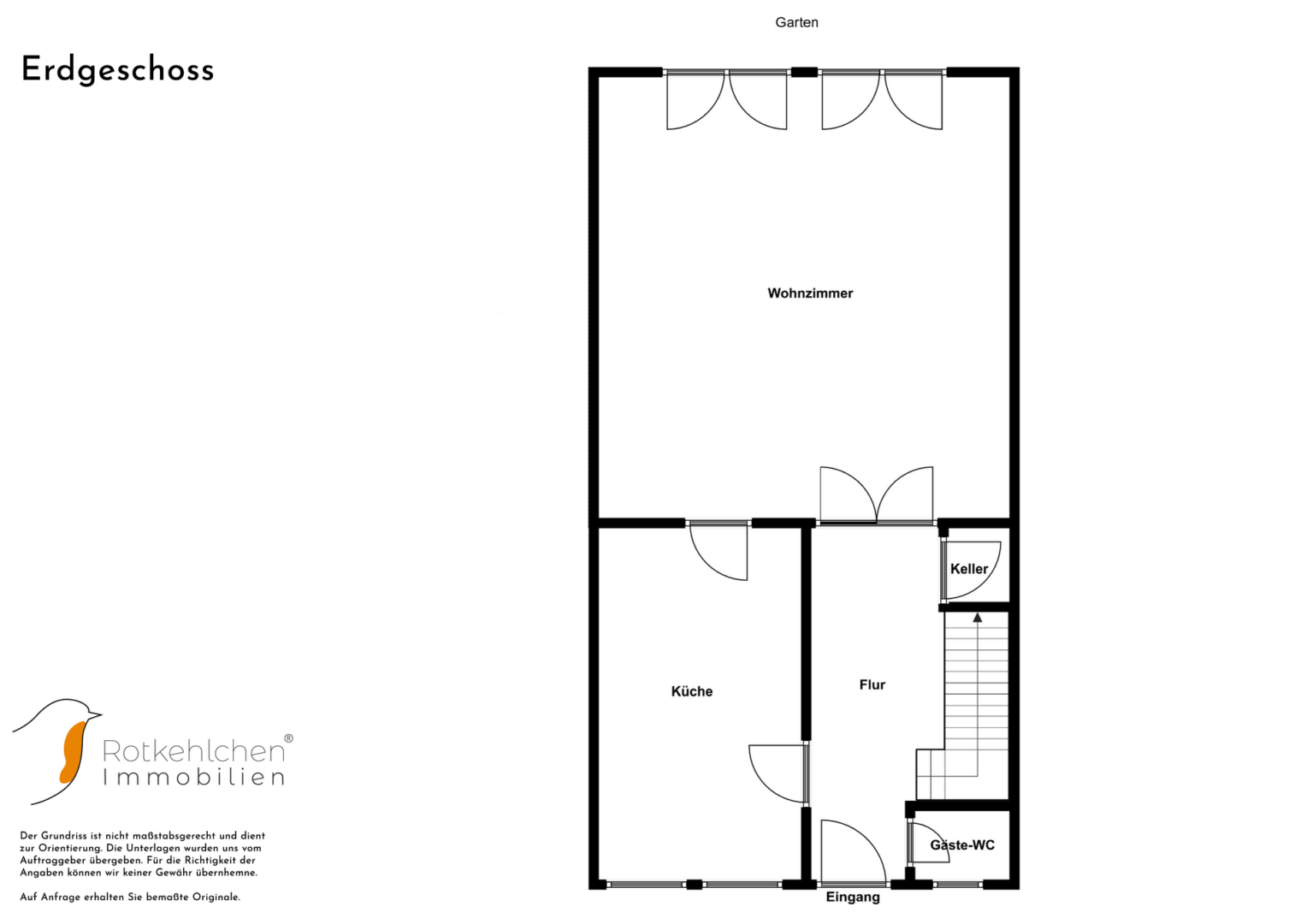
Erdgeschoss – Wohnkomfort und direkter Gartenzugang:
Das Erdgeschoss empfängt Sie mit einem lichtdurchfluteten Hausflur, welcher nur durch einen Windfang mit Glastüren vom idyllischen Wohnzimmer getrennt ist. Das Wohnzimmer bietet Ihnen nicht nur genügend Platz, sondern besticht ebenfalls mit einem traumhaften Blick in den Garten. Der hochwertige Parkettboden und die helle, einladende Atmosphäre schaffen ein Zuhause zum Wohlfühlen. Ein direkter Zugang führt von hier aus auf die großzügige, gepflasterte Terrasse und in den gepflegten Garten.
Die Terrasse bietet reichlich Platz für gemütliche Sitzgelegenheiten. Im angrenzenden Garten können Sie Ihrer Kreativität freien Lauf lassen und den Außenbereich nach Ihren Wünschen gestalten.
Die moderne Küche im Erdgeschoss, welche dem Mieter zur Verfügung gestellt wird, punktet mit hochwertigen Markengeräten und einem ansprechenden Design. Abgerundet wird die Etage durch ein stilvolles Gäste-WC.
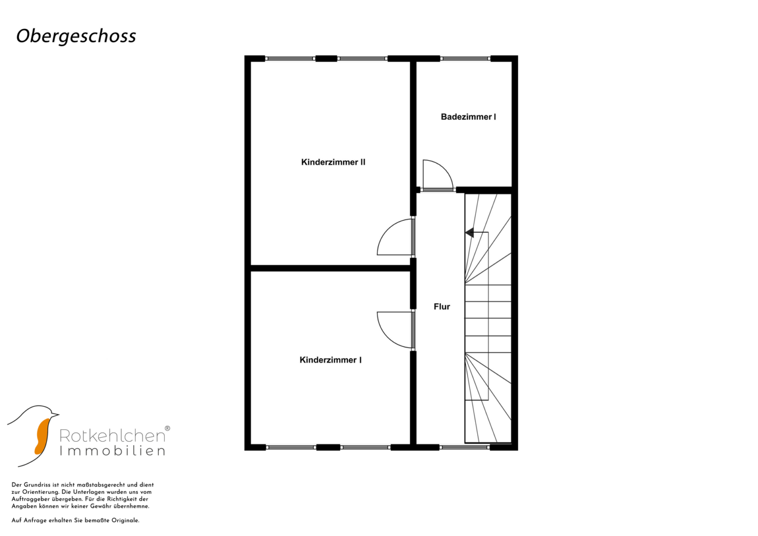
Erste Etage – Vielseitig nutzbare Räume:
Auf der zweiten Ebene befinden sich zwei geräumige Zimmer, die sich ideal als Kinder-, Gäste- oder Arbeitszimmer eignen. Ein modernes Tageslichtbad mit Dusche und Badewanne sorgt für zusätzlichen Komfort.
Dachgeschoss – Privater Rückzugsort:
Das Dachgeschoss beherbergt ein großzügiges Hauptschlafzimmer, das durch ein angrenzendes, voll ausgestattetes Badezimmer ergänzt wird. Ein weiteres Zimmer bietet vielfältige Nutzungsmöglichkeiten, beispielsweise als Ankleidezimmer oder Home-Office.
Vollunterkellerung – Viel Platz für Ihre Ideen:
Der vollunterkellerte Bereich bietet nicht nur reichlich Stauraum, sondern auch die Option, einen Hobbyraum einzurichten.
Moderne Ausstattung für höchsten Wohnkomfort:
Alle Räume sind mit einer Fußbodenheizung ausgestattet und sorgen für ein angenehmes Wohnklima. Die moderne Innenausstattung kombiniert mit der erstklassigen Lage machen diese Immobilie zu einem wahren Juwel.
In dieser einzigartigen Immobilie bleiben keine Wünsche offen – erleben Sie ein Zuhause, das stilvolles Wohnen mit einer hervorragenden Lage vereint.
Highlights im Überblick:
- Gefragte Lage
- Hochwertiger Parkettboden
- Bodentiefe Fenster im Wohnbereich
- Elektrische Rollläden
- Terrasse und Garten mit Blick in den Grachtenpark
- Fußbodenheizung in jedem Raum
- Moderne Küche mit hochwertigen Markengeräten
- Gäste-WC
- Zwei vollausgestattete Badezimmer
- Vollunterkellert
- Hochmoderne Innenausstattung


















