Willkommen in Ihrem neuen Zuhause – Dieses großzügige freistehende Einfamilienhaus überzeugt durch seine durchdachte Raumaufteilung, den traumhaften Garten und eine idyllische Lage – ideal für alle, die ein naturnahes Zuhause mit viel Platz suchen.
Diese Immobilie befindet sich in einer ruhigen Wohnstraße im Wachtendonker Ortsteil Wankum – ein charmanter Ort mit ausgezeichneter Infrastruktur. Alles für den täglichen Bedarf wie Supermarkt, Bäckerei, Apotheke, Grundschule und Kindergarten ist fußläufig erreichbar. Weiterführende Schulen, größere Einkaufsmöglichkeiten und die Autobahnauffahrt sind in wenigen Autominuten bequem zu erreichen. Die Nachbarschaft ist geprägt von Einfamilienhäusern und viel Grün – perfekt für Familien und Naturfreunde.
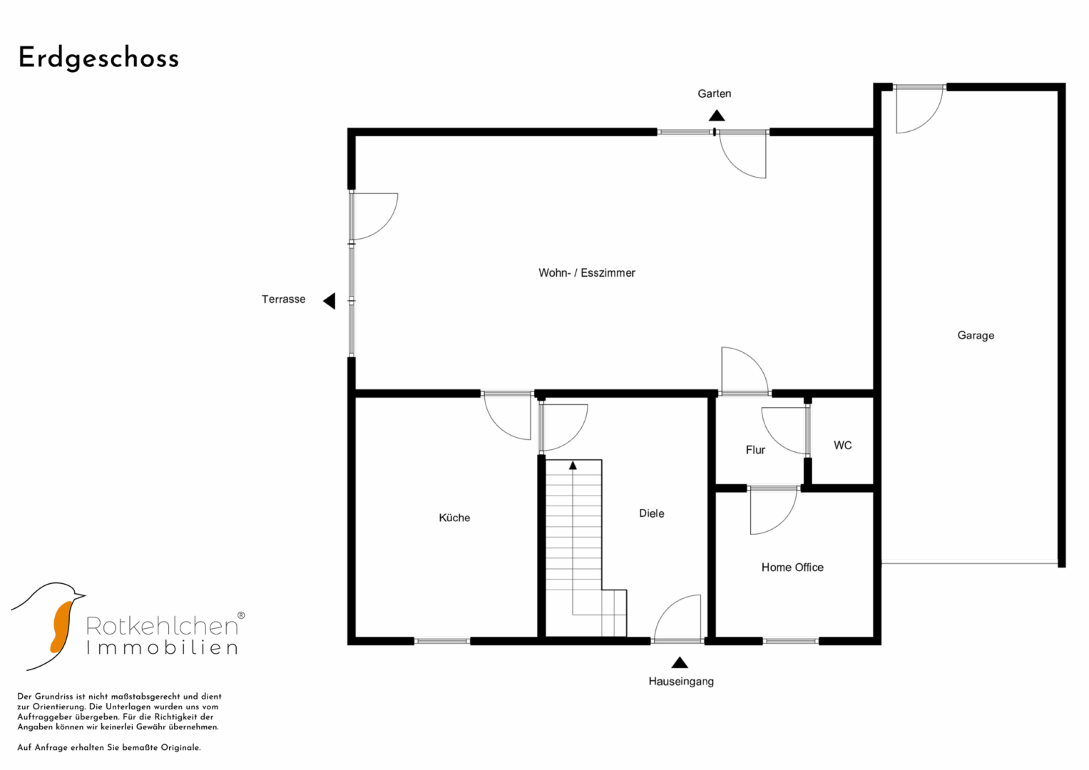
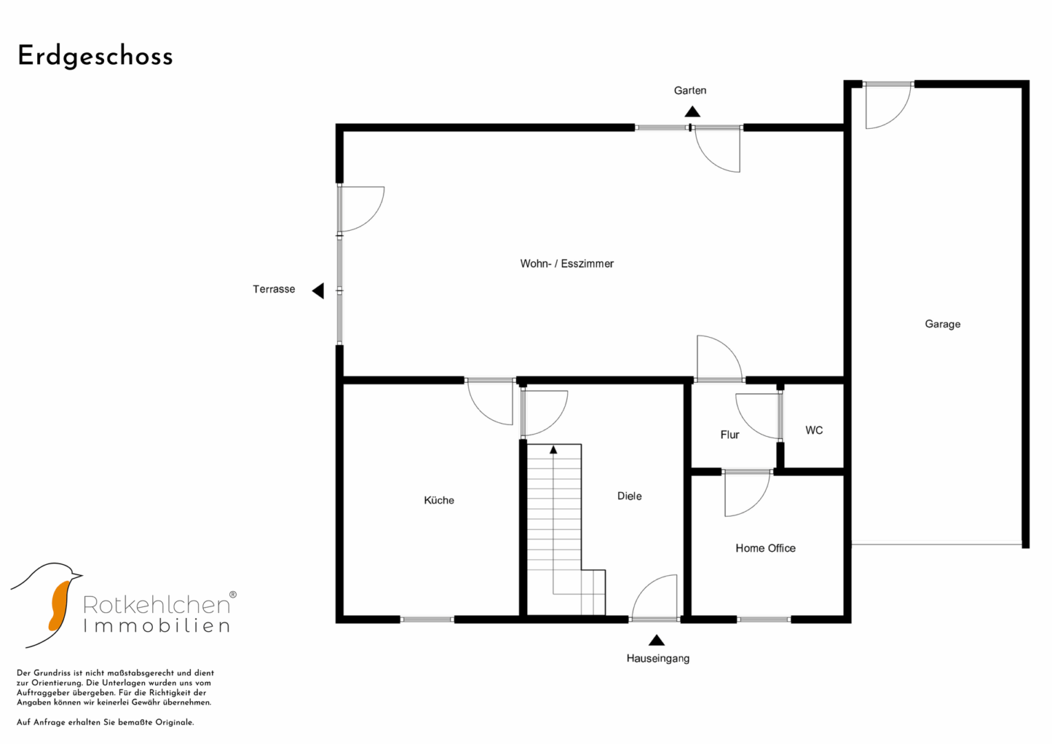
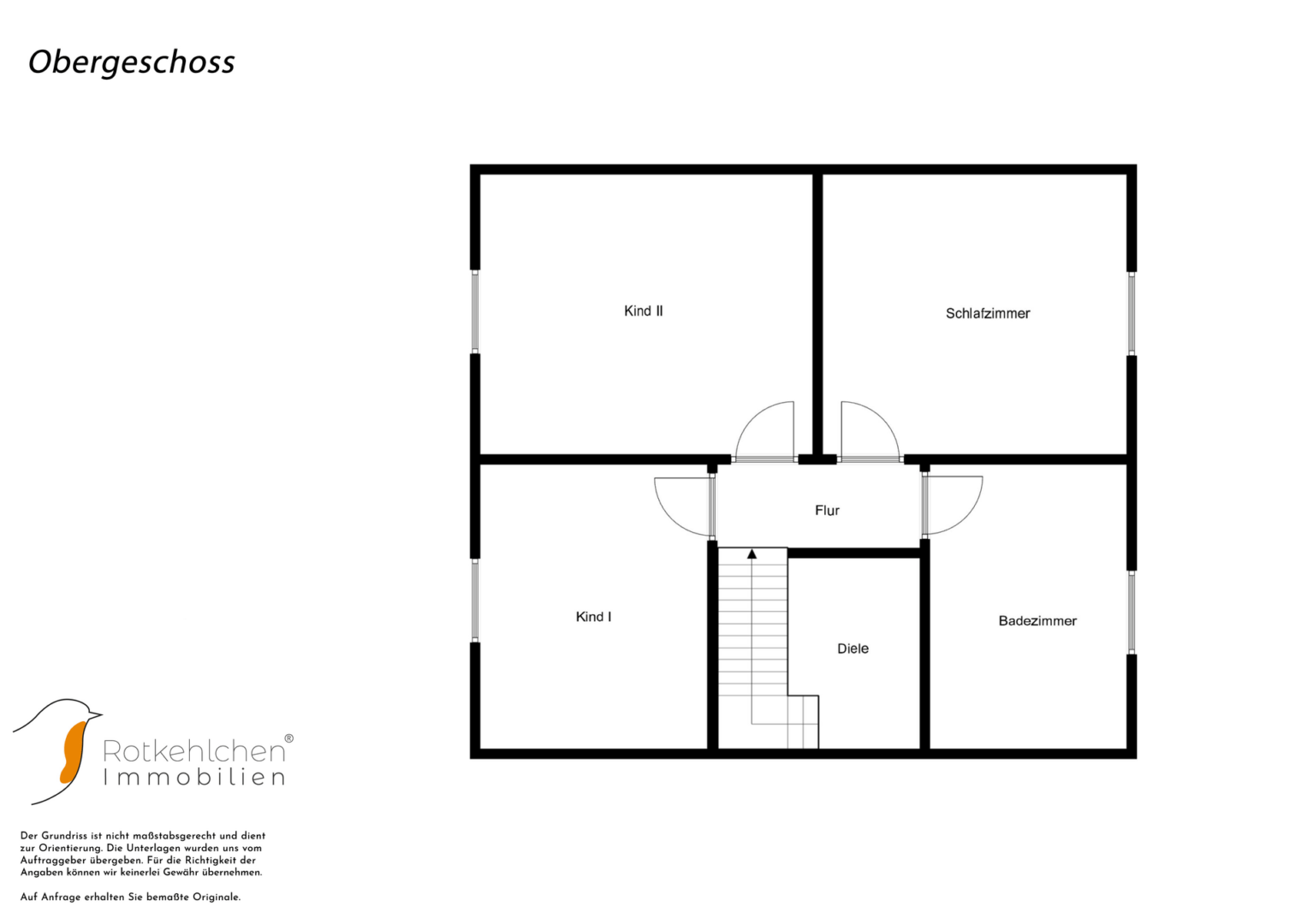
Mit rund 122 m² Wohnfläche bietet dieses Haus reichlich Platz für Kinderzimmer und Home-Office. Im Erdgeschoss befindet sich eine großzügige, helle Küche sowie das sehr große Wohnzimmer mit hochwertigen Echtholzböden und einem gemütlichen Kamin. Ein Arbeitszimmer und Gäste-WC rundet das Raumangebot auf dieser Ebene ab. Im Dachgeschoss erwarten Sie drei geräumige Schlafzimmer sowie ein Tageslichtbad – ideal für das Familienleben.
Das 1993 errichtete Fertighaus stammt vom renommierten Qualitätshersteller Allkauf. Der Keller bietet mit seiner guten Deckenhöhe vielseitige Nutzungsmöglichkeiten und ausreichend Stauraum. Eine große Terrasse führt in den liebevoll angelegten Südwest-Garten – eingerahmt von einer dichten Hecke, mit Zisterne zur Gartenbewässerung. Der sonnige Garten ist ein echtes Highlight: groß, ruhig, blickgeschützt und ein Paradies für Kinder, Gartenfreunde oder Hundebesitzer. Glasfaseranschluss für schnelles Internet ist bereits vorhanden. Oberflächliche Modernisierungen sind überschaubare Arbeiten vor dem Einzug.
Zur Immobilie gehört eine Garage mit Überlänge – perfekt für Auto, Fahrräder und Gartengeräte.
Vor der Garage besteht noch ausreichen Platz für bis zu zwei Stellplätze.
Diese Immobilie ist ideal für Familien mit Kindern, die Wert auf viel Platz, Ruhe und eine familienfreundliche Umgebung legen. Drei Schlafzimmer plus Home-Office und Einkaufsmöglichkeiten direkt um die Ecke machen das Leben hier besonders komfortabel.
Lassen Sie sich von dieser besonderen Immobilie begeistern – vereinbaren Sie noch heute einen Besichtigungstermin und entdecken Sie Ihr neues Familienglück in Wankum!
Gerne beraten wir Sie zu den Möglichkeiten einer weiteren Bebauung. Aus ersten Gesprächen mit der Gemeinde und Architekten ergeben sich sowohl Erweiterungsmöglichkeiten der bestehenden Immobilie als auch die Möglichkeit der Teilung des Grundstücks für eine weitere Bebauung. Zögern Sie nicht, uns zu kontaktieren.
Highlights:
•Traumhaftes Grundstück mit Süd-Westausrichtung
•Weiteres Baufenster
•Drei Schlafzimmer
•Home-Office
•Glasfaser
•Parkett
•Kamin
•Elektrische Rollladen
•Zisterne
•Garage extra lang
und vieles mehr...




















