Dieses großzügige, freistehende Einfamilienhaus bietet die ideale Gelegenheit für Familien, die sich ein Zuhause ganz nach ihren eigenen Vorstellungen gestalten möchten. Mit zahlreichen Schlafzimmern, einem liebevoll angelegten Garten und viel Platz.
Mitten im charmanten Wachtendonk-Wankum gelegen, genießen Sie hier die Vorteile einer zentralen Lage und zugleich das Gefühl von Kleinstadtidylle. Alle Geschäfte des täglichen Bedarfs sind bequem zu Fuß erreichbar, während größere Einkaufsmöglichkeiten, Sportangebote und die Anbindung an die Autobahn nur wenige Autominuten entfernt liegen. Die Umgebung ist geprägt von gepflegten Einfamilienhäusern sowie Feldern und Wiesen in unmittelbarer Nähe.
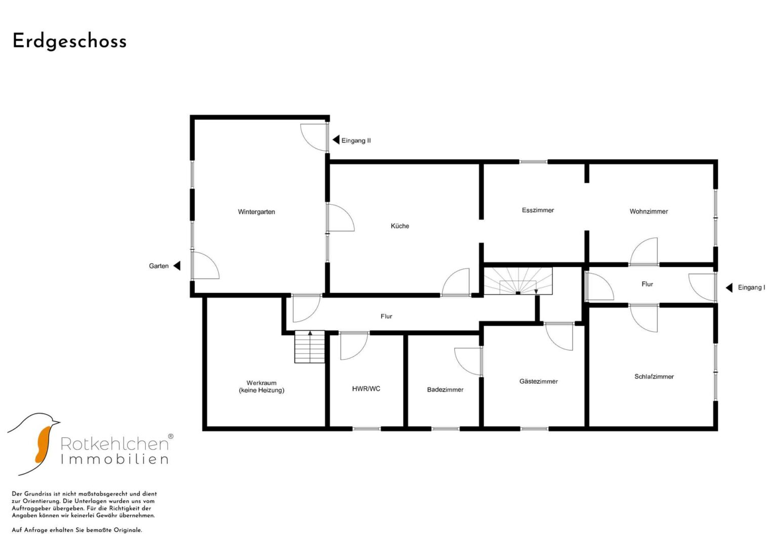
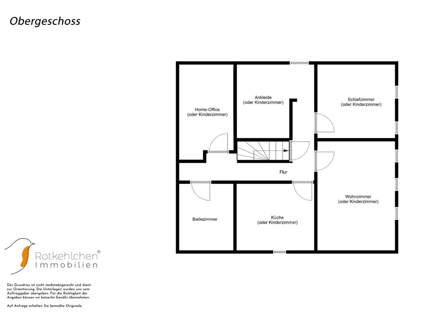
Auf rund 155 m² Wohnfläche plus ausgebautem Dachgeschoss bietet diese Immobilie flexible Nutzungsmöglichkeiten: Ob bis zu acht Schlafzimmer, die Aufteilung in zwei Wohneinheiten oder großzügige Räume für Home-Office und Hobby – hier ist alles möglich. Zwei voll ausgestattete Küchen sowie jeweils ein Badezimmer auf jeder Etage bieten hohen Komfort und machen das Objekt besonders interessant auch für Mehrgenerationenhaushalte. Highlight ist der große, lichtdurchflutete Wintergarten, der direkt an die Küche angrenzt und einen herrlichen Blick in den gepflegten Garten bietet.
Das genaue Baujahr dieser Immobilie ist nicht bekannt. Im Laufe der Jahre wurden einige Veränderungen und Erweiterungen vorgenommen. Das Haus verfügt über eine solide Grundsubstanz und wartet darauf, durch kreative Ideen und stilvolle Renovierungen neues Leben eingehaucht zu bekommen. Die Gasheizung wurde bereits 2010 erneuert, größere Sanierungen fanden zuletzt in den 1990er-Jahren statt. Die verbauten Kunststofffenster mit Doppelverglasung bieten bereits eine gute Energiebilanz und unterstreichen den gepflegten Zustand des Hauses.
Der Außenbereich überzeugt mit einer überdachten Terrasse, einer kleinen Werkstatt direkt am Haus sowie einer Garage mit direktem Zugang zum Garten. Weitere Stellplätze direkt vor der Garage bieten zusätzlichen Platz für Fahrzeuge oder Besuch.
Die Immobilie eignet sich ideal für große Familien oder Mehrgenerationenkonstellationen: Während Eltern im Erdgeschoss mit Schlafzimmer, Ankleide und eigenem Bad wohnen können, bieten Ober- und Dachgeschoss ausreichend Rückzugsorte für Kinder oder weitere Familienmitglieder.
Nutzen Sie diese seltene Gelegenheit, Ihre Ideen zu verwirklichen, und vereinbaren Sie noch heute einen persönlichen Besichtigungstermin – dieses Haus wartet auf Ihre Ideen!



































