Willkommen in diesem charmanten zweistöckigen Einfamilienhaus, das sich auch ideal als Zweifamilienhaus nutzen lässt. Die durchdachte Architektur ermöglicht eine flexible Nutzung, da auf jeder Etage sowohl eine Küche als auch ein Bad vorhanden sind. Besonders komfortabel gestaltet ist das Erdgeschoss mit einer altersgerechten barrierefreien Dusche.
Die Immobilie präsentiert sich in einem gepflegten Zustand, und kontinuierliche Renovierungs- sowie Sanierungsarbeiten wurden durchgeführt, um höchsten Wohnkomfort zu gewährleisten.
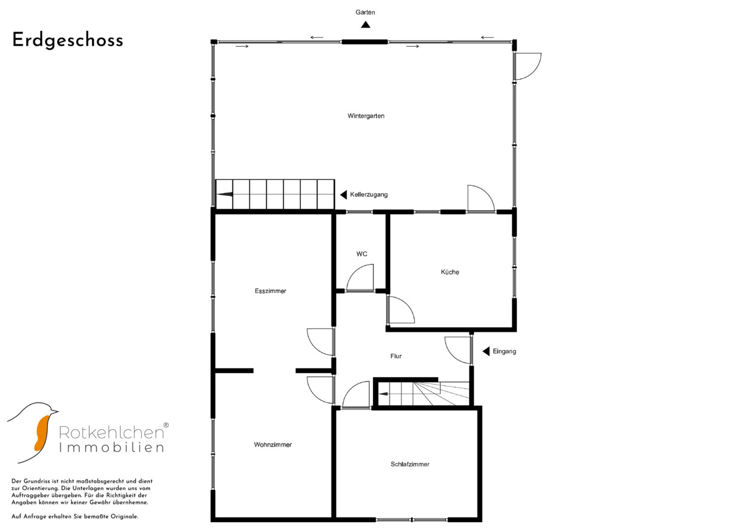
Besonders hervorzuheben ist der riesige, komplett eingezäunte Garten. Auf über 2000 m² bleiben keine Wünsche offen. Gestalten Sie sich ein Gartenparadies ganz nach Ihren Vorstellungen. Weiteres Highlight: Im Jahr 2010 wurde ein sehr großer südseitiger lichtdurchfluteter Wintergarten hinzugefügt, der mit schwenkbaren Doppelverglasungen und Plissees ausgestattet ist. Von hier aus genießen Sie einen traumhaften Blick auf Ihr Grundstück.
Die Ausstattung des Hauses lässt keine Wünsche offen und präsentiert sich auf einem modernen Stand der Technik. Die Heizung wurde im Jahr 2006 erneuert, um eine effiziente Wärmeversorgung sicherzustellen. Im Jahr 2020 erfolgte die Erneuerung der Heizkörper sowie die Installation von neuen Elektrorollos, einschließlich der Dachfenster. Zudem wurden die Rollladenpanzer ausgetauscht. In diesem Jahr wurde auch die Hausflurtreppe erneuert, um sicherzustellen, dass das gesamte Objekt in bestem Zustand bleibt.
Schnelles Internet mit 400 MB von Deutsche Glasfaser sorgt für eine moderne und zuverlässige Vernetzung auch im Home-Office. Die doppelverglasten Alu-Rahmenfenster sorgen für optimale Lichtverhältnisse und sind energetisch effizient. Einbauschränke in den Schlafzimmern bieten praktischen Stauraum. Im Preis inbegriffen sind zwei sehr gut erhaltene Markenküchen samt aller benötigten Geräte. Eine Sat-Anlage ist bereits installiert, um ein breites Spektrum an TV-Unterhaltung zu gewährleisten. Das Haus ist voll unterkellert, wodurch ausreichend Stauraum vorhanden ist. Die mögliche Durchfahrt in den Garten sowie die geteilte Doppelgarage mit separatem Werkraum und Abstellraum bieten praktische Annehmlichkeiten. Eine Grundwasseranlage im geschützten Gartenhaus ermöglicht eine effiziente Gartenbewässerung. Zwei weitere Gartenhäuser bieten zusätzlichen Stauraum für Gartengeräte und weitere Utensilien.
Diese Immobilie vereint gemütliches Wohnen in ländlicher Umgebung mit modernem Komfort. Lassen Sie sich von diesem einzigartigen Zuhause begeistern und vereinbaren Sie noch heute einen Besichtigungstermin, um alle Vorzüge dieser Immobilie selbst zu erleben.

















