Charmantes Mehrfamilienhaus mit drei gut geschnittenen Wohneinheiten in bester Altstadtlage von Kempen.
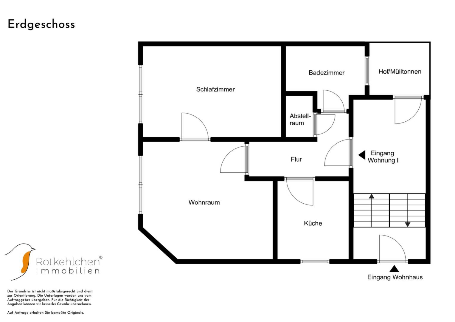
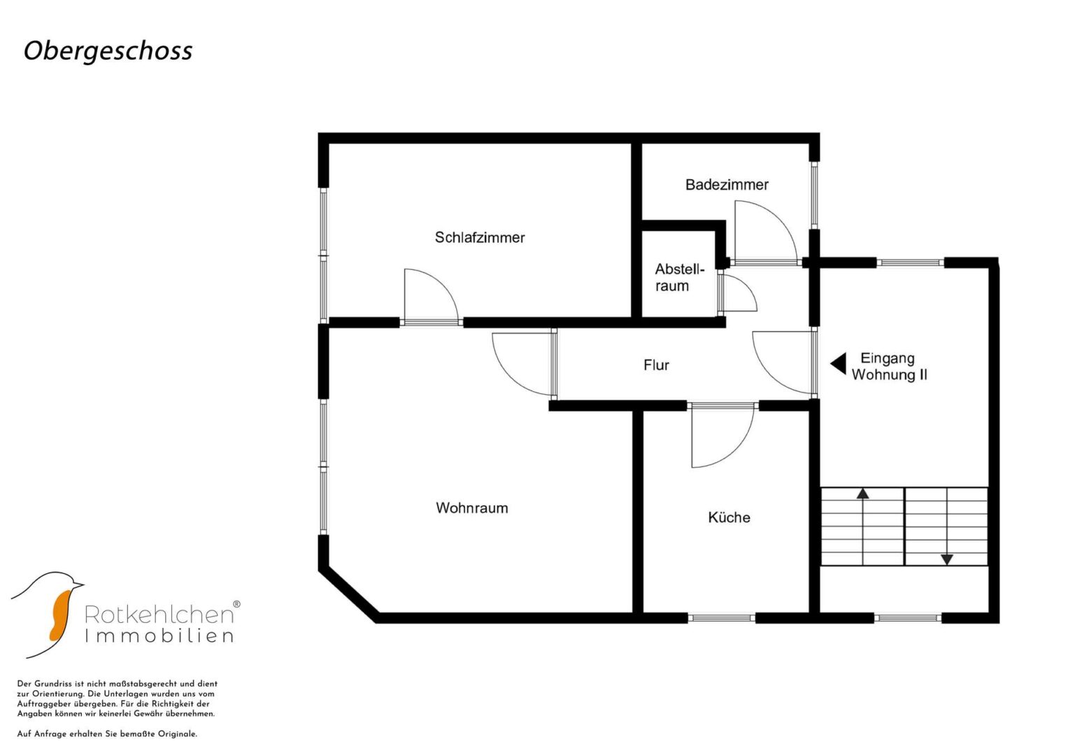
Dieses gepflegte Mehrfamilienhaus aus dem Jahr 1902 wurde 1981 mit den entsprechenden Genehmigungen umfassend umgebaut und präsentiert sich heute in einer soliden und ansprechenden Struktur. Aufgeteilt in drei gut geschnittene Wohnungen – im Erdgeschoss, Obergeschoss und Dachgeschoss – bietet die Immobilie eine attraktive Möglichkeit für Kapitalanleger. Jede Wohneinheit verfügt über einen kleinen Flur, eine Küche, ein Wohnzimmer, ein Schlafzimmer sowie ein helles Tageslichtbad mit Durchlauferhitzer. Den Mietern steht jeweils ein separater Kellerraum zur Verfügung. Zudem befindet sich im Kellergeschoss ein gemeinschaftlicher Waschraum mit Platz für Waschmaschinen und Trockner. Dank der hervorragenden Lage mitten in der historischen Altstadt von Kempen bietet die Immobilie nicht nur eine äußerst gefragte Wohnlage mit hoher Lebensqualität, sondern auch ein erhebliches Wertsteigerungspotenzial in den kommenden Jahren. Diese Kombination aus charmantem Altbaucharakter, solider Bausubstanz und erstklassiger Lage macht das Objekt zu einer besonders interessanten Investitionsmöglichkeit.
Starkes Entwicklungspotenzial durch steigerbare Mieten und positive Kaufpreisentwicklung in dieser gefragten Lage
Aufteilung & Mieteinnahmen
Drei Wohneinheiten
Die Immobilie überzeugt durch gut drei geschnittene Wohneinheiten, die alle mit Tageslichtbädern ausgestattet sind.
Erdgeschoss
•Wohnfläche: ca. 40 m²
•Kaltmiete: 425,00 EUR
•Mietvertrag seit 01.11.2012
1. Obergeschoss
•Wohnfläche: ca. 42 m²
•Kaltmiete: 439,65 EUR
•Mietvertrag seit 01.07.1999
Dachgeschoss
•Wohnfläche: ca. 37 m²
•Kaltmiete: 450,00 EUR
•Mietvertrag seit 01.11.2023
Staffelmiete
•Jedes Jahr Mietsteigerung um 5,00EUR - 10,00EUR / Monat für jede Wohnung
IST-MIETEINAHMEN JAHR / 15.775,80 EUR
Ausstattung & Sonstiges
•Vaillant Gas-Heizung Baujahr 2006 (Baujahr Heizung noch nicht bestätigt)
•Keine Wasseruhren
•Fenster Holz-Doppelverglasung (1981)
•Tageslichtbäder (1.OG 80er und EG u. DG 90er-Jahre)
•Bäder mit Durchlauferhitzern
•Bodenbeläge: Parkett, Laminat, Teppich, Fliesen
•Dach nicht gedämmt
•Letzte Geschossdecke gedämmt
Highlights der Immobilie
•Toplage in der Kempener Altstadt
•Feste Mieteinnahmen ab dem ersten Tag
•Attraktives Wertsteigerungspotenzial
•Jährlich steigende Einnahmen durch Staffelmiete
