Diese in Massivbauweise errichtete Doppelhaushälfte erwartet Sie in bester Lage.
Nur wenige Gehminuten vom Stadtzentrum entfernt befinden sich alle Geschäfte des täglichen Bedarfs in unmittelbarer Nähe. Gleichzeitig liegt der Cambridge Park fast direkt vor der Haustür.
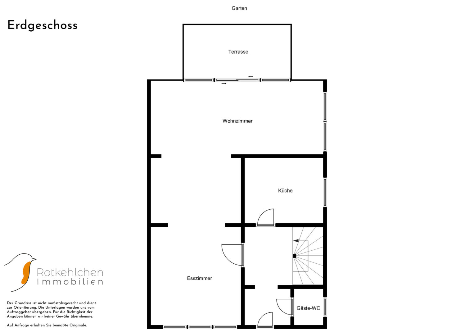
Insgesamt steht Ihnen eine Wohnfläche von ca. 110m² zur Verfügung.
Im Erdgeschoss befinden sich die großzügige Küche, das Gäste-WC sowie der helle Essbereich mit Zugang zum Wohnzimmer. Besonders hervorzuheben ist der offen gestaltete Wohnbereich, der durch die bodentiefe Fensterfront für eine lichtdurchflutete Atmosphäre sorgt und zudem mit einem traumhaften Blick in den Garten überzeugt.
Über die gepflasterte Terrasse gelangt man von hier aus in den gepflegten und großzügig angelegten Außenbereich. Ihr Garten ist dank der vielen Grünpflanzen nicht einsehbar und bietet Ihnen somit absolute Privatsphäre. Eine grüne Oase in bester Lage.
Auf der ersten Ebene befinden sich das große Schlafzimmer mit Blick auf den Garten sowie zwei weitere Räume, die sich ideal als Kinder- oder Arbeitszimmer eignen. Auch eine Nutzung als Ankleidezimmer oder Hobbyraum wäre hier denkbar, so dass Ihren Gestaltungsideen keine Grenzen gesetzt sind.
Außerdem befindet sich auf dieser Ebene das helle Tageslichtbad inklusive Badewanne, welches Sie nach Ihren Vorstellungen neu gestalten.
Über die Treppe gelangen Sie in den bereits ausgebauten Spitzboden. Auch dieser bietet Ihnen zahlreiche Nutzungsmöglichkeiten. So lässt sich hier beispielsweise ein Homeoffice hervorragend realisieren.
Voll unterkellert bietet diese Immobilie ausreichend Stauraum. Eine Garage mit vorgelagerten Stellplätzen rundet das Angebot ab.
Eine einmalige Gelegenheit, die eigenen Wünsche in begehrter Lage zu verwirklichen.
Highlights:
•Perfekte Lage
•Traumhaftes Grundstück
•Drei Schlafzimmer plus Home-Office
•Holzfenster 2002
•Gas-Heizung 2006
•Garage
•Stellplätze
•Und vieles mehr…



















