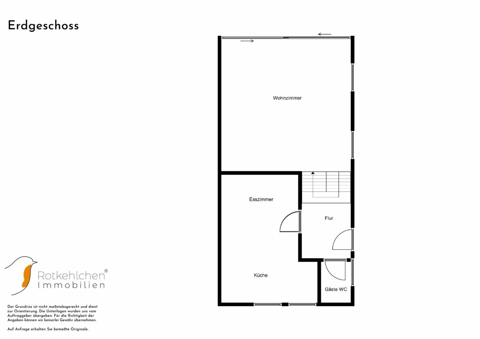
Diese Doppelhaushälfte erwartet Sie in einmaliger Lage direkt an der Natur und doch zentral. 1987 in Massivbauweise errichtet, bleiben hier keine Wünsche offen. Die einzigartige Architektur ermöglicht ein offenes Wohnkonzept auf verschiedenen Ebenen mit einer Gesamtfläche von ca. 180 m². So haben Sie beispielsweise vom höher liegenden Wohnzimmer aus einen fantastischen Blick in die Natur und stehen gleichzeitig im Kontakt zur Küche und dem Essbereich. Ein Kamin sorgt auch an kühleren Tagen für eine behagliche Atmosphäre.
Die Innenausstattung besticht durch hochwertige Granitböden, die dem gesamten Wohnbereich eine elegante und zugleich robuste Grundlage verleihen. Das große Schlafzimmer mit begehbarem Kleiderschrank und direktem Blick auf den See macht jeden Morgen zu einem besonderen Erlebnis. Ein voll ausgestattetes Tageslichtbad bietet ausreichend Platz für die Familie. Gerade für Familien ermöglicht diese Immobilie ausreichend Schlafzimmer. Bis zu vier Kinderzimmer können hier realisiert werden.
Die Doppelhaushälfte ist teilunterkellert und bietet somit zusätzlichen Stauraum und Nutzungsmöglichkeiten. Der Garten begeistert durch eine traumhafte Südausrichtung, die den ganzen Tag über viel Sonnenlicht bietet. Auf der großen überdachten Terrasse mit elektrischer Markise können Sie die warmen Tage im Freien genießen, während die Gartenbewässerung mit Grundwasserbrunnen für eine stets grüne und gepflegte Umgebung sorgt.
Ein besonderes Highlight ist das Tor, das direkt zum See führt und Ihnen jederzeit den Zugang zu diesem idyllischen Gewässer ermöglicht. Eine Garage mit vorliegendem Stellplatz rundet dieses Angebot optimal ab.
Diese Immobilie vereint Naturverbundenheit und zentrale Lage, hochwertige Bauweise und durchdachtes Wohnkonzept – ein perfektes Zuhause für anspruchsvolle Familien.
Highlights:
•Einmalige Lage
•Direkter Zugang zum See
•Südausrichtung
•Granitboden
•Große überdachte Terrasse
•Elektrische Markise
•Grundwasserbrunnen
•Elektrische Rollläden
•Bis zu 5 Schlafzimmer
•Garage und Stellplatz
•Und vieles mehr...






















